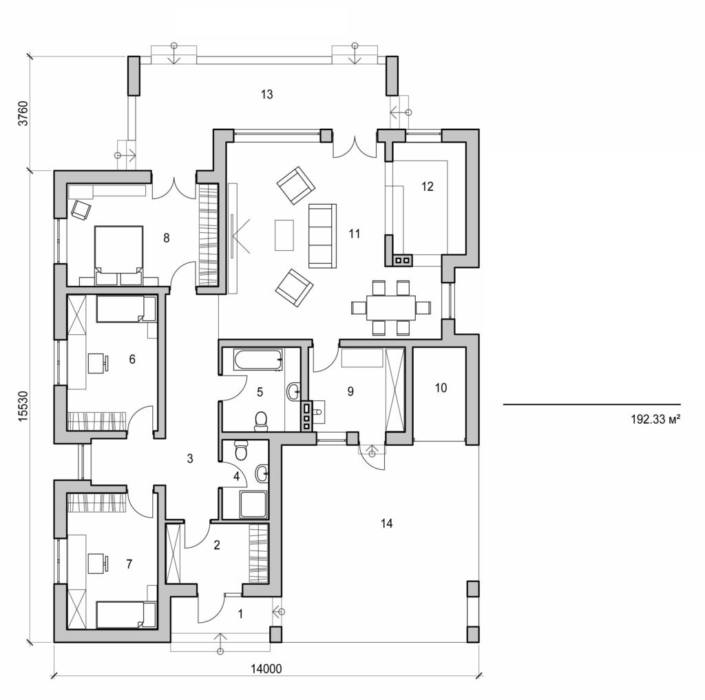
One storey modern house

192 m² total area / 2067 ft² 1 floor bedrooms
One storey modern house
Click to view

Interested in this plan?

Contact us to get full blueprints, construction estimate, or adapt this plan to your plot and needs.

Request more information

Visualization gallery