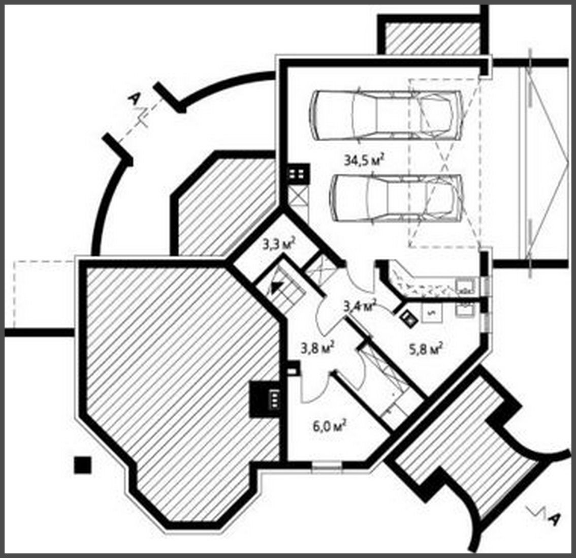
Plan of the mansion with an area of ​​231 square meters. m in a modern European style

232 m² total area / 2497 ft² 3 floors 4 bedrooms 3 bathrooms
Plan of the mansion with an area of ​​231 square meters. m in a modern European style
Click to view

Description

Plan of the mansion with an area of ​​231 square meters. m in a modern European style Number of floors: 3 Total area: 231.80 m2 Living Area: 139.70 m2 House height: 11.00 m Ceiling Height: 2.80 m Roof Angle: 40 °, 55 ° Roof area: 229.00 m2 Cubature: 942.00 m3 Number of bedrooms: 4 Number of bathrooms: 3 Garage: Two-car garage Minimum plot size (length): 22.30 m Minimum plot size (width): 22.50 m Built-up area: 126 m2 Ground floor area: 56.80 m2 Materials: Walls: aerated concrete, ceramic blocks Overlap: monolithic overlap Roofing: ceramic tile, metal tile, cement-sand tile Foundation: monolithic tape

Interested in this plan?

Contact us to get full blueprints, construction estimate, or adapt this plan to your plot and needs.

Request more information

Visualization gallery