Comfortable house with a spacious attic

268 m² total area / 2885 ft² 1 floor 4 bedrooms 3 bathrooms
Comfortable house with a spacious attic
Click to view

Description

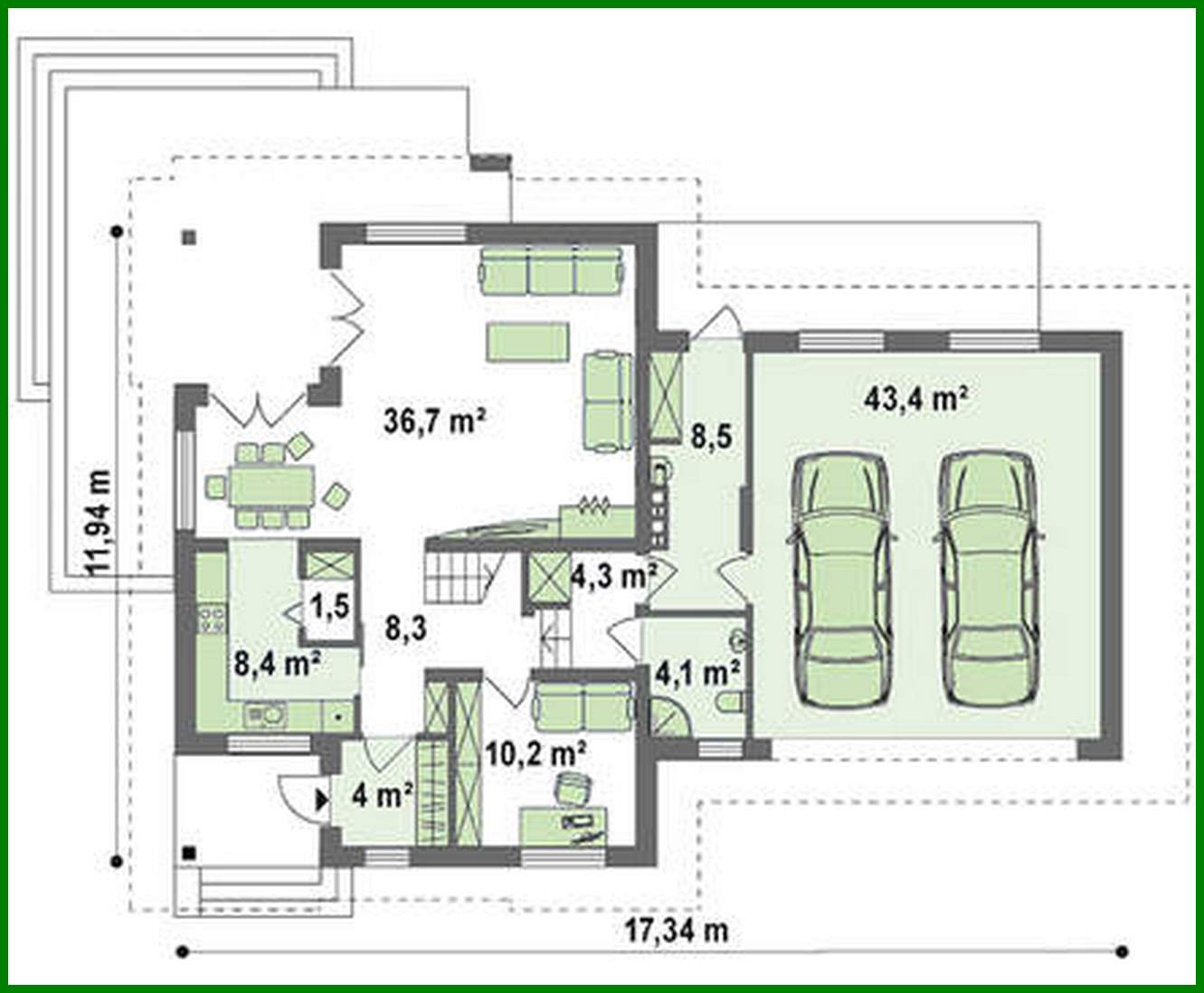
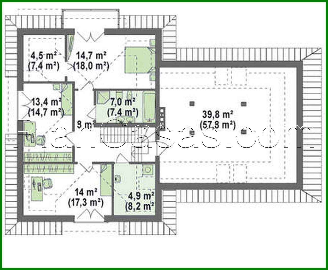
Comfortable house with a spacious attic Number of floors: 2 Total area: 268.30 m2 Living Area: 183.80 m2 House height: 8.37 m Ceiling Height: 2.80 m Roof Angle: 38 ° Roof area: 282.00 m2 Cubature: 650.00 m3 Number of bedrooms: 4 Number of bathrooms: 3 Garage: Two-car garage Minimum plot size (length): 24.30 m Minimum plot size (width): 19.90 m Materials: Walls: aerated concrete, ceramic blocks Overlap: monolithic overlap Roofing: ceramic tile, metal tile, cement-sand tile Foundation: monolithic tape

Interested in this plan?

Contact us to get full blueprints, construction estimate, or adapt this plan to your plot and needs.

Request more information

Visualization gallery