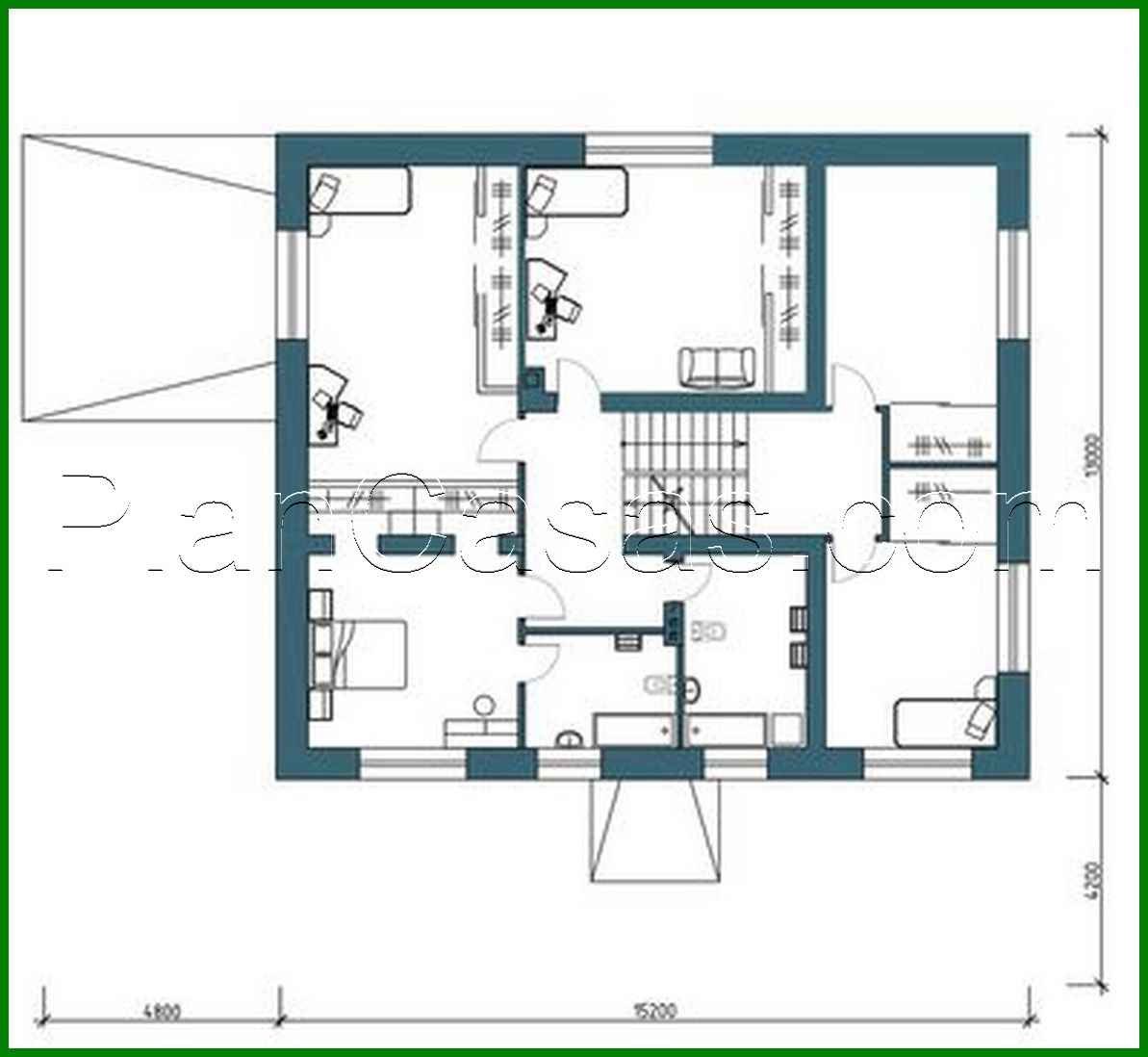
Spacious two-story house with a basement

302 m² total area / 3251 ft² 2 floors 4 bedrooms 3 bathrooms
Spacious two-story house with a basement
Click to view

Description

Spacious two-story house with a basement Number of floors: 2 Total area: 302.00 m2 House height: 11.00 m Ceiling Height: 2.80 m Roof Angle: 27 ° Roof area: 458.00 m2 Cubic capacity: 1045.00 m3 Number of bedrooms: 4 Number of bathrooms: 3 Garage: Two-car garage Built-up area: 197 m2 Materials: Walls: aerated concrete, ceramic blocks Overlap: monolithic overlap Roofing: metal tile, ceramic tile, bitumen Foundation: monolithic tape

Interested in this plan?

Contact us to get full blueprints, construction estimate, or adapt this plan to your plot and needs.

Request more information

Visualization gallery