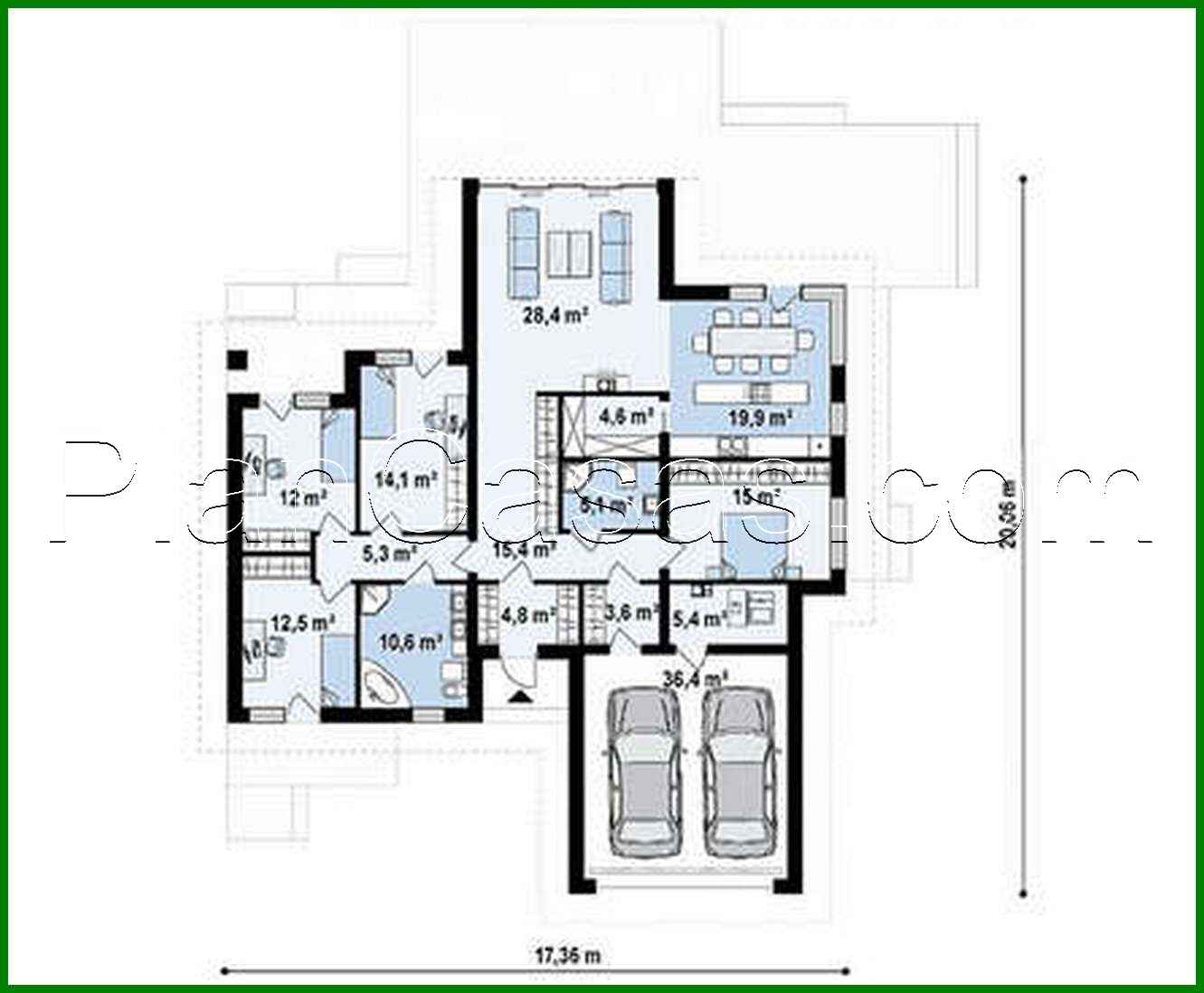
Project of an attractive cottage on 246 square meters. m with a spacious living room and stained-glass windows

246 m² total area / 2648 ft² 1 floor 4 bedrooms 2 bathrooms
Project of an attractive cottage on 246 square meters. m with a spacious living room and stained-glass windows
Click to view

Description

Project of an attractive cottage on 246 square meters. m with a spacious living room and stained-glass windows Number of floors: 1 Total area: 246.00 m2 Living Area: 192.00 m2 House height: 6.16 m Ceiling Height: 2.80 m Roof Angle: 24 ° ° Number of bedrooms: 4 Number of bathrooms: 2 Garage: Two-car garage Minimum plot size (length): 28.00 m Minimum plot size (width): 24.00 m Materials: Walls: aerated concrete, ceramic blocks Overlap: monolithic overlap Roofing: ceramic tile, metal tile, cement-sand tile Foundation: monolithic tape band

Interested in this plan?

Contact us to get full blueprints, construction estimate, or adapt this plan to your plot and needs.

Request more information

Visualization gallery