Project of a modern mansion with an area of ​​259 square meters. m in european style

260 m² total area / 2799 ft² 2 floors 5 bedrooms 3 bathrooms
Project of a modern mansion with an area of ​​259 square meters. m in european style
Click to view

Description

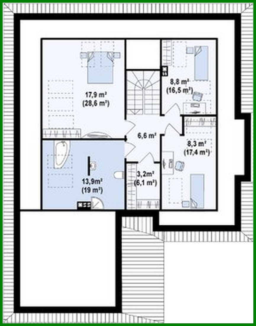
Project of a modern mansion with an area of ​​259 square meters. m in european style Number of floors: 2 Total area: 259.50 m2 Living Area: 192.60 m2 House height: 7.43 m Ceiling Height: 2.80 m Roof Angle: 25 ° ° Cubic capacity: 636.20 m3 Number of bedrooms: 5 Number of bathrooms: 3 Garage: Two-car garage Minimum plot size (length): 26.44 m Minimum plot size (width): 22.34 m Built-up area: 213.4 m2 Materials: Walls: aerated concrete, ceramic blocks Overlap: monolithic overlap Roofing: ceramic tile, metal tile, cement-sand tile Foundation: monolithic tape band

Interested in this plan?

Contact us to get full blueprints, construction estimate, or adapt this plan to your plot and needs.

Request more information

Visualization gallery