The project of a nice cottage with an area of 184 square meters. m with attached garage

184 m² total area / 1981 ft² 2 floors 4 bedrooms 2 bathrooms
The project of a nice cottage with an area of 184 square meters. m with attached garage
Click to view

Description

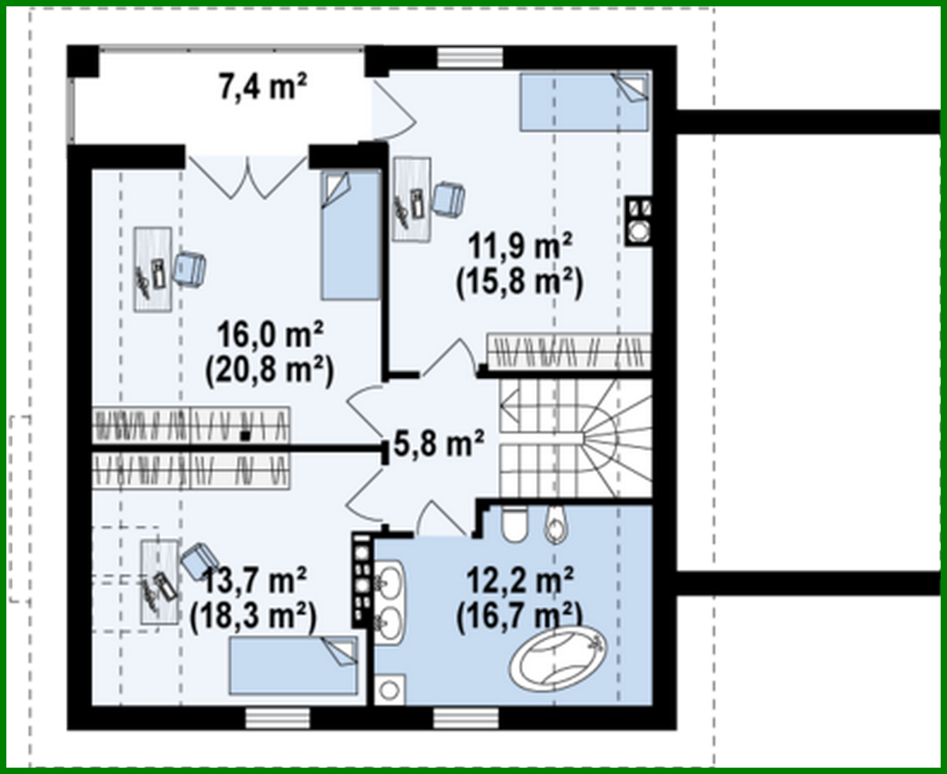
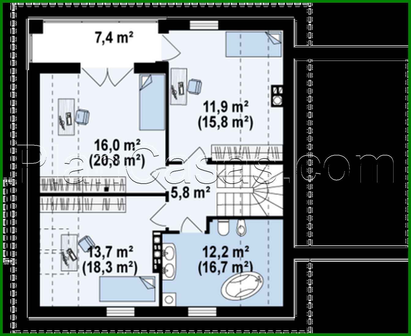
The project of a nice cottage with an area of 184 square meters. m with attached garage Number of floors: 2 Total area: 184.00 m2 Living Area: 145.00 m2 House height: 8.00 m Ceiling Height: 2.80 m Roof Angle: 40 ° ° Roof area: 205.00 m2 Number of bedrooms: 4 Number of bathrooms: 2 Garage: Garage for one car Minimum plot size (length): 19.00 m Minimum plot size (width): 21.00 m Materials: Walls: aerated concrete, ceramic blocks Overlap: monolithic overlap Roofing: metal tile, ceramic tile Foundation: monolithic tape

Interested in this plan?

Contact us to get full blueprints, construction estimate, or adapt this plan to your plot and needs.

Request more information

Visualization gallery