The project of a bright cozy cottage with an attic and a garage for 2 cars

236 m² total area / 2540 ft² 2 floors 3 bedrooms 3 bathrooms
The project of a bright cozy cottage with an attic and a garage for 2 cars
Click to view

Description

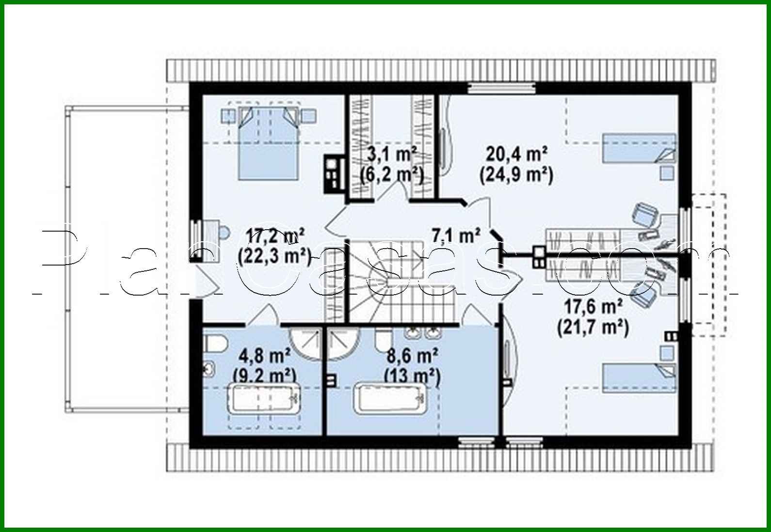
The project of a bright cozy cottage with an attic and a garage for 2 cars Number of floors: 2 Total area: 236.00 m2 Living Area: 155.00 m2 House height: 7.00 m Ceiling Height: 2.80 m Roof Angle: 38 ° / 5 ° Roof area: 190.00 m2 Cubature: 594.00 m3 Number of bedrooms: 3 Number of bathrooms: 3 Garage: Two-car garage Minimum plot size (length): 25.00 m Minimum plot size (width): 17.00 m Materials: Walls: aerated concrete, ceramic blocks Overlap: monolithic overlap Roofing: ceramic tile, metal tile, cement-sand tile Foundation: monolithic tape band

Interested in this plan?

Contact us to get full blueprints, construction estimate, or adapt this plan to your plot and needs.

Request more information

Visualization gallery