Project of a cottage with a garage

182 m² total area / 1959 ft² 2 floors 4 bedrooms 3 bathrooms
Project of a cottage with a garage
Click to view

Description

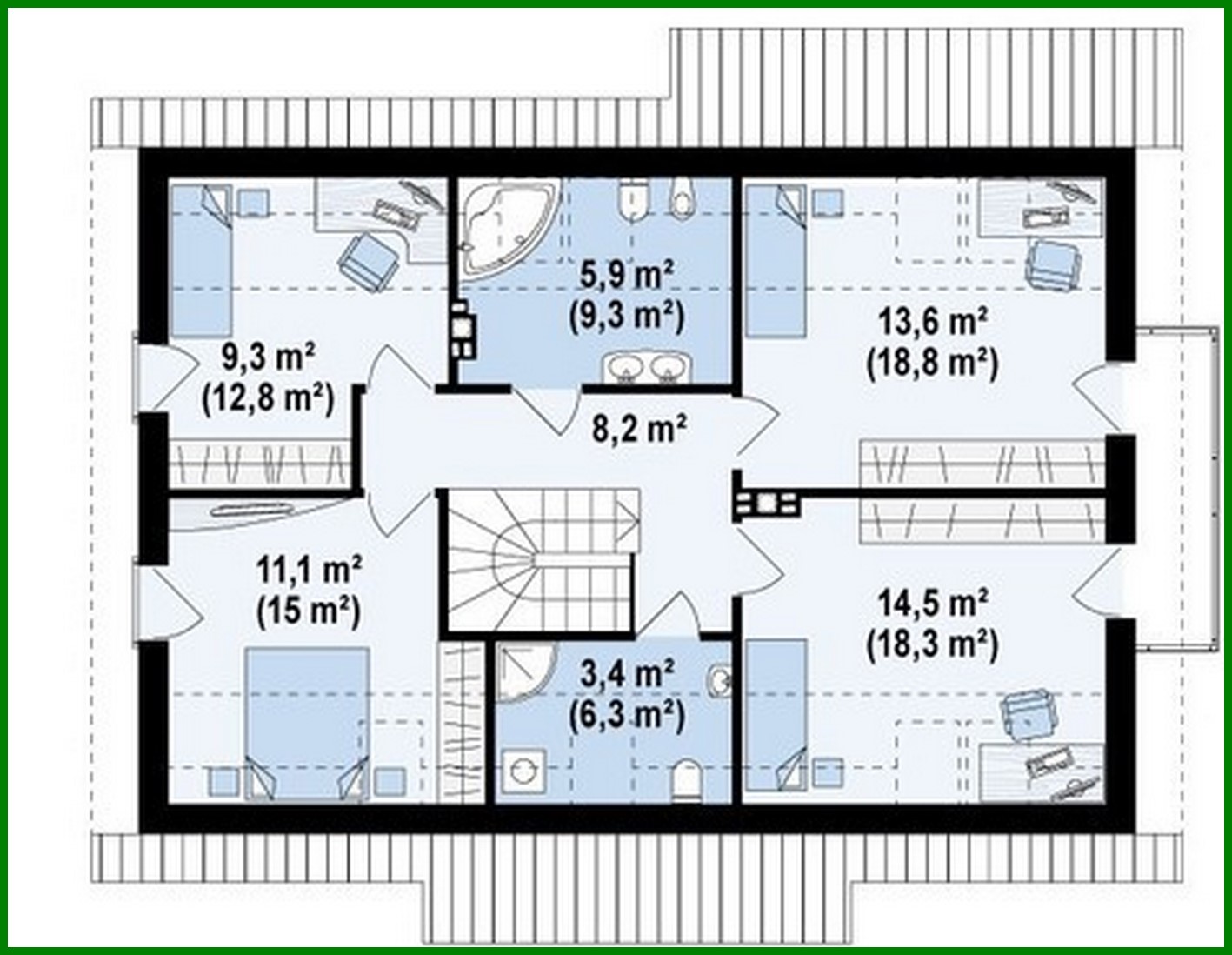
Project of a cottage with a garage Number of floors: 2 Total area: 182.00 m2 Living Area: 133.00 m2 House height: 8.00 m Ceiling Height: 2.80 m Roof Angle: 40 ° Roof area: 199.00 m2 Cubature: 445.00 m3 Number of bedrooms: 4 Number of bathrooms: 3 Garage: Garage for one car Minimum plot size (length): 21.00 m Minimum plot size (width): 16.00 m Materials: Walls: aerated concrete, ceramic blocks Overlap: monolithic overlap Roofing: ceramic tile, metal tile, cement-sand tile Foundation: monolithic tape band

Interested in this plan?

Contact us to get full blueprints, construction estimate, or adapt this plan to your plot and needs.

Request more information

Visualization gallery