House project with front windows in the attic

275 m² total area / 2960 ft² 1 floor 4 bedrooms 3 bathrooms
House project with front windows in the attic
Click to view

Description

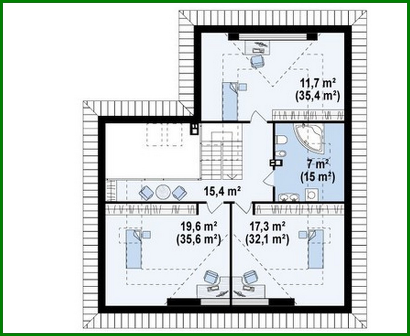
House project with front windows in the attic Number of floors: 2 Total area: 274.70 m2 Living Area: 179.00 m2 House height: 7.00 m Ceiling Height: 2.80 m Roof Angle: 32 ° Roof area: 232.00 m2 Cubic capacity: 661.00 m3 Number of bedrooms: 4 Number of bathrooms: 3 Garage: Two-car garage Minimum plot size (length): 21.00 m Minimum plot size (width): 23.00 m Materials: Walls: aerated concrete, ceramic blocks Overlap: monolithic overlap Roofing: ceramic tile, metal tile, cement-sand tile Foundation: monolithic tape band

Interested in this plan?

Contact us to get full blueprints, construction estimate, or adapt this plan to your plot and needs.

Request more information

Visualization gallery