House project with an original facade for a large plot

136 m² total area / 1464 ft² 2 floors 3 bedrooms 2 bathrooms
House project with an original facade for a large plot
Click to view

Description

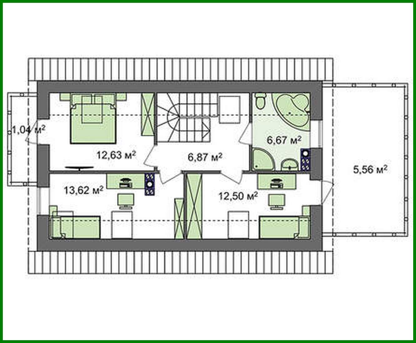
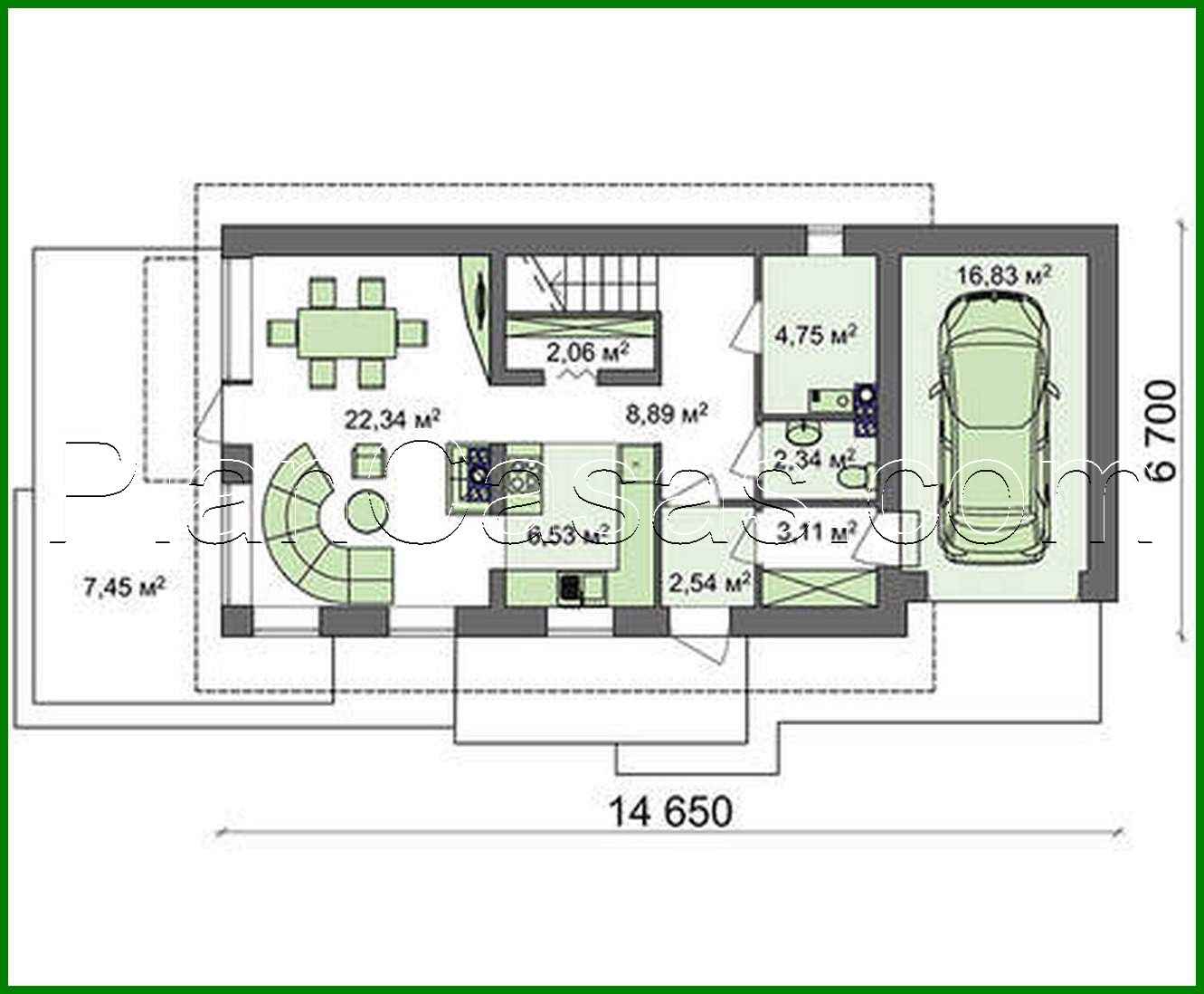
House project with an original facade for a large plot Number of floors: 2 Total area: 135.73 m2 Living Area: 61.09 m2 House height: 7.38 m Ceiling Height: 2.80 m Roof Angle: 35 ° Roof area: 112.00 m2 Cubic capacity: 318.00 m3 Number of bedrooms: 3 Number of bathrooms: 2 Garage: Garage for one car Minimum plot size (length): 13.00 m Minimum plot size (width): 21.00 m Materials: Walls: aerated concrete, ceramic blocks Overlap: monolithic overlap Roofing: metal tile, ceramic tile, bitumen Foundation: monolithic tape

Interested in this plan?

Contact us to get full blueprints, construction estimate, or adapt this plan to your plot and needs.

Request more information

Visualization gallery