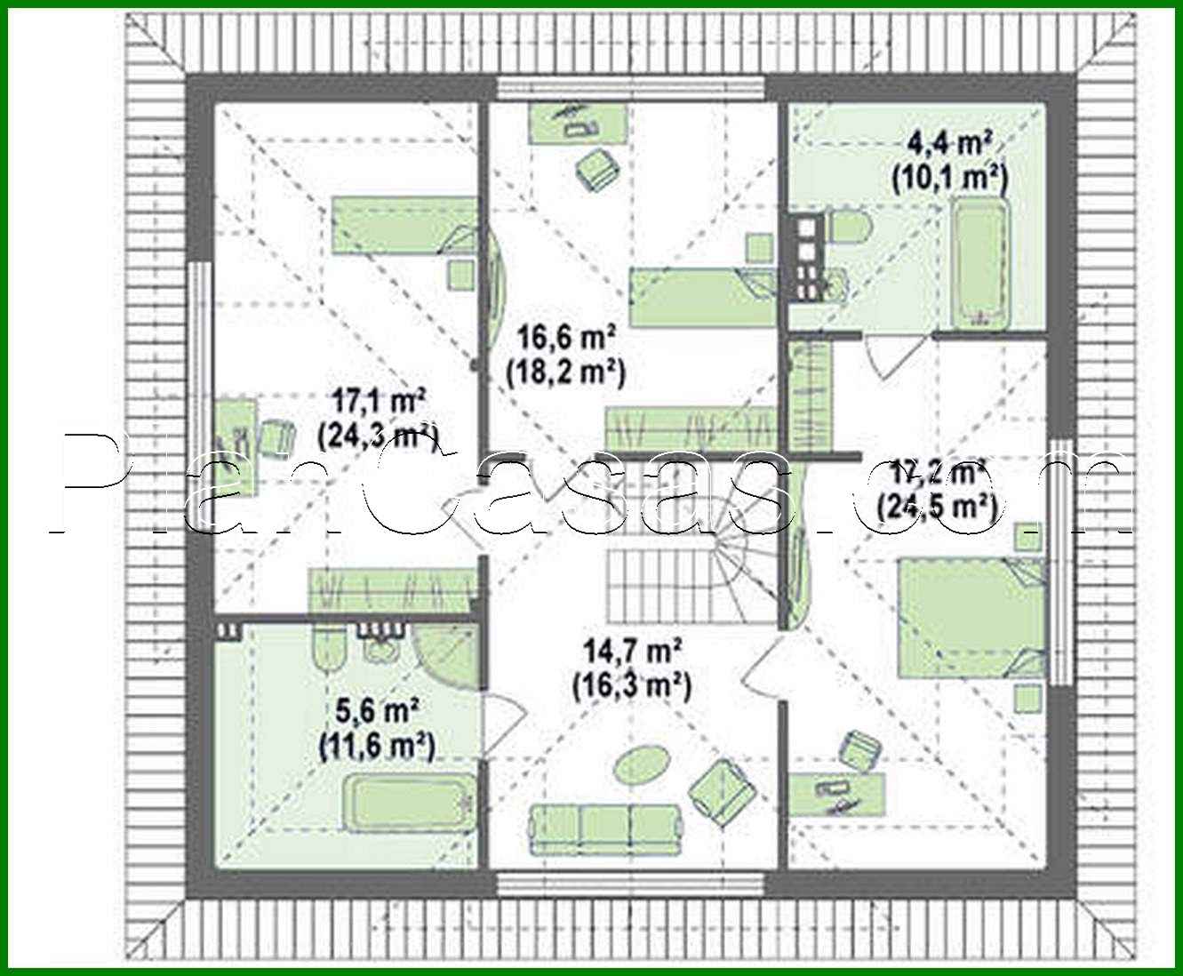
House project with integrated garage and glazed living room

199 m² total area / 2142 ft² 2 floors 3 bedrooms 3 bathrooms
House project with integrated garage and glazed living room
Click to view

Description

House project with integrated garage and glazed living room Number of floors: 2 Total area: 199.00 m2 Living Area: 143.00 m2 House height: 8.00 m Ceiling Height: 2.80 m Roof Angle: 35 ° Roof area: 222.00 m2 Cubature: 559.00 m3 Number of bedrooms: 3 Number of bathrooms: 3 Garage: Garage for one car Minimum plot size (length): 19.00 m Minimum plot size (width): 19.00 m Materials: Walls: aerated concrete, ceramic blocks Overlap: monolithic overlap Roofing: metal tile, ceramic tile, bitumen Foundation: monolithic tape

Interested in this plan?

Contact us to get full blueprints, construction estimate, or adapt this plan to your plot and needs.

Request more information

Visualization gallery