House project with a gable roof and a garage for two cars

223 m² total area / 2400 ft² 2 floors 4 bedrooms 3 bathrooms
House project with a gable roof and a garage for two cars
Click to view

Description

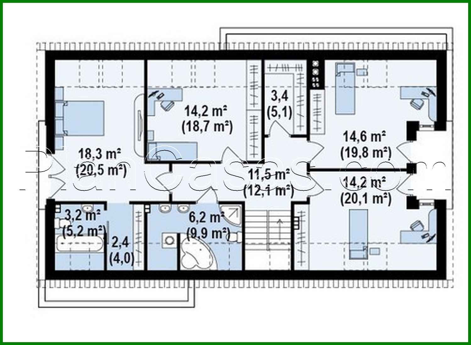
House project with a gable roof and a garage for two cars Number of floors: 2 Total area: 223.00 m2 Living Area: 160.20 m2 House height: 7.93 m Ceiling Height: 2.80 m Roof Angle: 38 ° Roof area: 197.00 m2 Cubature: 549.00 m3 Number of bedrooms: 4 Number of bathrooms: 3 Garage: Two-car garage Minimum plot size (length): 24.14 m Minimum plot size (width): 17.24 m Materials: Walls: aerated concrete, ceramic blocks Overlap: monolithic overlap Roofing: ceramic tile, metal tile, cement-sand tile Foundation: monolithic tape band

Interested in this plan?

Contact us to get full blueprints, construction estimate, or adapt this plan to your plot and needs.

Request more information

Visualization gallery