Project of a large cottage with a garage, an attic and an additional bedroom

259 m² total area / 2788 ft² 2 floors 3 bedrooms 3 bathrooms
Project of a large cottage with a garage, an attic and an additional bedroom
Click to view

Description

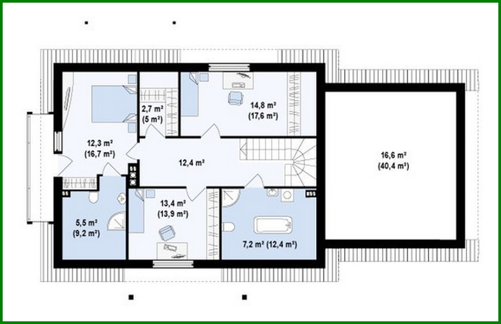
Project of a large cottage with a garage, an attic and an additional bedroom Number of floors: 2 Total area: 259.00 m2 Living Area: 180.40 m2 House height: 7.83 m Ceiling Height: 2.80 m Roof Angle: 38 ° Roof Area: 255.24 m2 Cubic capacity: 615.00 m3 Number of bedrooms: 3 Number of bathrooms: 3 Garage: Two-car garage Minimum plot size (length): 17.00 m Minimum plot size (width): 25.00 m Materials: Walls: aerated concrete, ceramic blocks Overlap: monolithic overlap Roofing: ceramic tile, metal tile, cement-sand tile Foundation: monolithic tape band

Interested in this plan?

Contact us to get full blueprints, construction estimate, or adapt this plan to your plot and needs.

Request more information

Visualization gallery