Cottage with bay window in the dining room

189 m² total area / 2034 ft² 2 floors 3 bedrooms 2 bathrooms
Cottage with bay window in the dining room
Click to view

Description

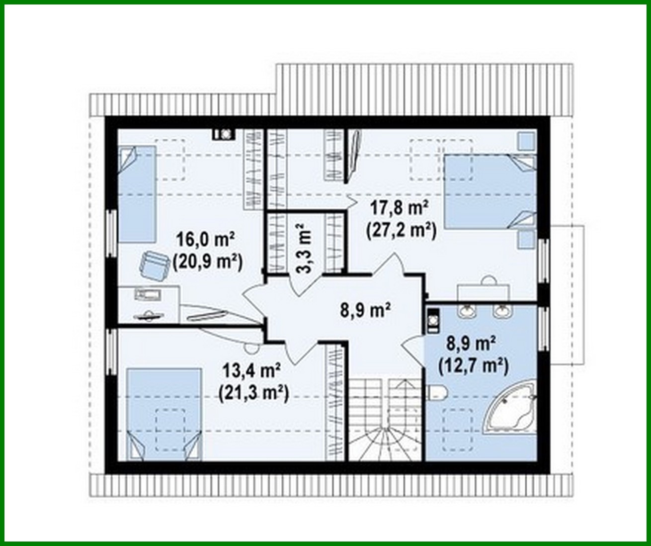
Cottage with bay window in the dining room Number of floors: 2 Total area: 189.00 m2 Living Area: 139.00 m2 House height: 7.83 m Ceiling Height: 2.80 m Roof Angle: 38 ° Roof area: 189.00 m2 Cubic capacity: 485.00 m3 Number of bedrooms: 3 Number of bathrooms: 2 Garage: Garage for one car Minimum plot size (length): 21.08 m Minimum plot size (width): 17.78 m Materials: Walls: aerated concrete, ceramic blocks Overlap: monolithic overlap Roofing: ceramic tile, metal tile, cement-sand tile Foundation: monolithic tape band

Interested in this plan?

Contact us to get full blueprints, construction estimate, or adapt this plan to your plot and needs.

Request more information

Visualization gallery