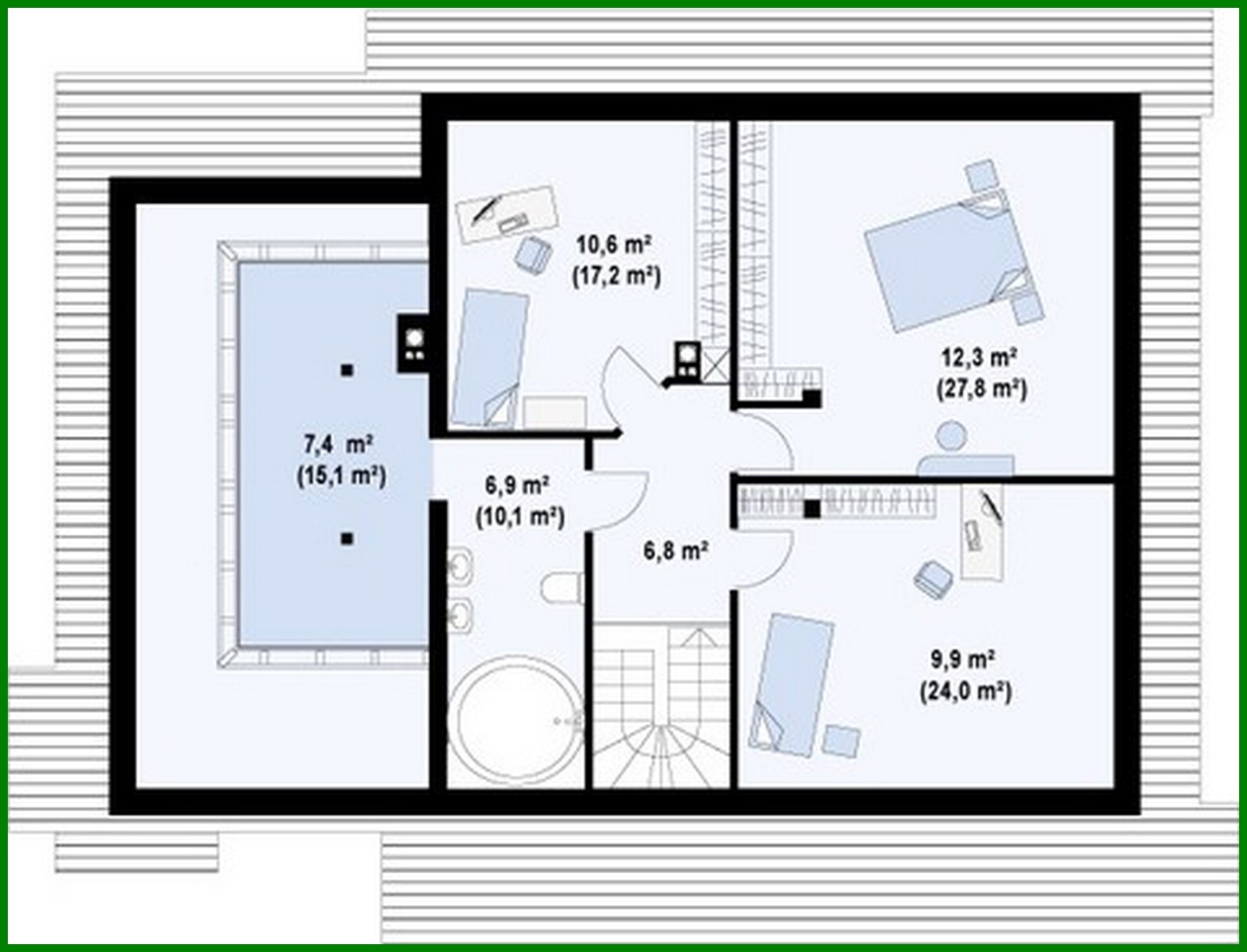
House project with garage, corner terrace

216 m² total area / 2325 ft² 2 floors bedrooms
House project with garage, corner terrace
Click to view

Description

House project with garage, corner terrace Number of floors: 2 Total area: 216.00 m2 Living Area: 150.00 m2 House height: 7.00 m Ceiling Height: 2.80 m Roof Angle: 32 ° Roof area: 227.00 m2 Cubic capacity: 509.00 m3 Garage: Garage for one car Minimum plot size (length): 22.00 m Minimum plot size (width): 18.00 m Materials: Walls: aerated concrete, ceramic blocks Overlap: monolithic overlap Roofing: ceramic tile, metal tile, cement-sand tile Foundation: monolithic tape band

Interested in this plan?

Contact us to get full blueprints, construction estimate, or adapt this plan to your plot and needs.

Request more information

Visualization gallery