Project of a beautiful house with an attic and a garage

226 m² total area / 2433 ft² 2 floors 3 bedrooms 2 bathrooms
Project of a beautiful house with an attic and a garage
Click to view

Description

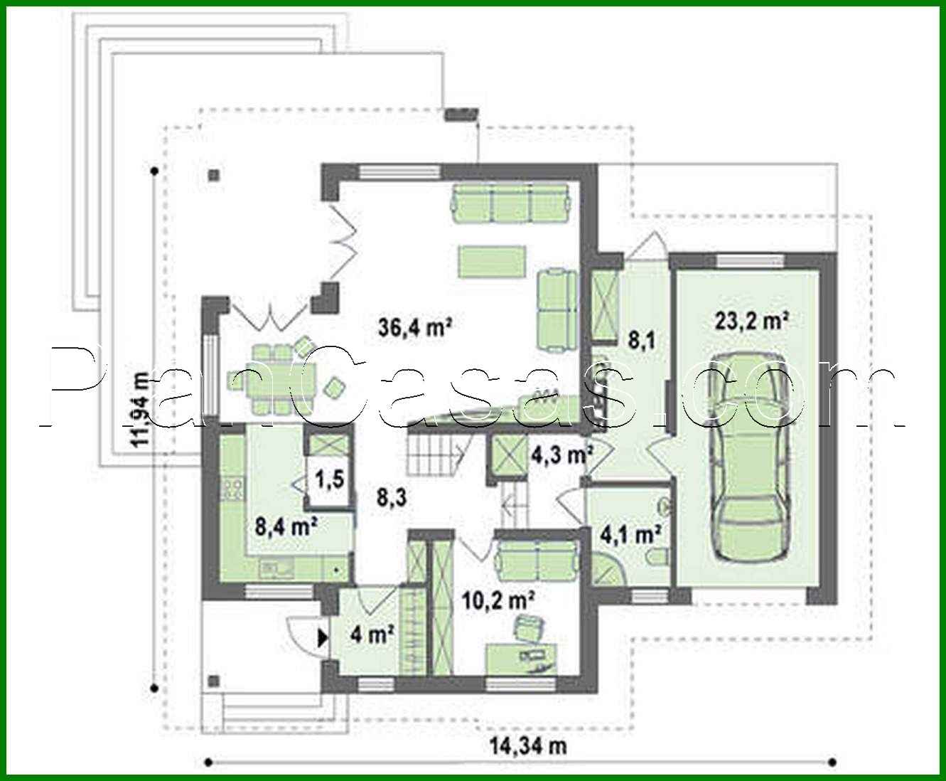
Project of a beautiful house with an attic and a garage Number of floors: 2 Total area: 226.00 m2 Living Area: 157.00 m2 House height: 8.37 m Ceiling Height: 2.80 m Roof Angle: 38 ° Roof area: 245.00 m2 Cubic capacity: 530.00 m3 Number of bedrooms: 3 Number of bathrooms: 2 Garage: Garage for one car Minimum plot size (length): 19.94 m Minimum plot size (width): 21.34 m Built-up area: 136 m2 Materials: Walls: aerated concrete, ceramic blocks Overlap: monolithic overlap Roofing: ceramic tile, metal tile, cement-sand tile Foundation: monolithic tape

Interested in this plan?

Contact us to get full blueprints, construction estimate, or adapt this plan to your plot and needs.

Request more information

Visualization gallery