Project of a modern stylish house with a bay window and an unusual balcony

125 m² total area / 1345 ft² 2 floors 4 bedrooms 2 bathrooms
Project of a modern stylish house with a bay window and an unusual balcony
Click to view

Description

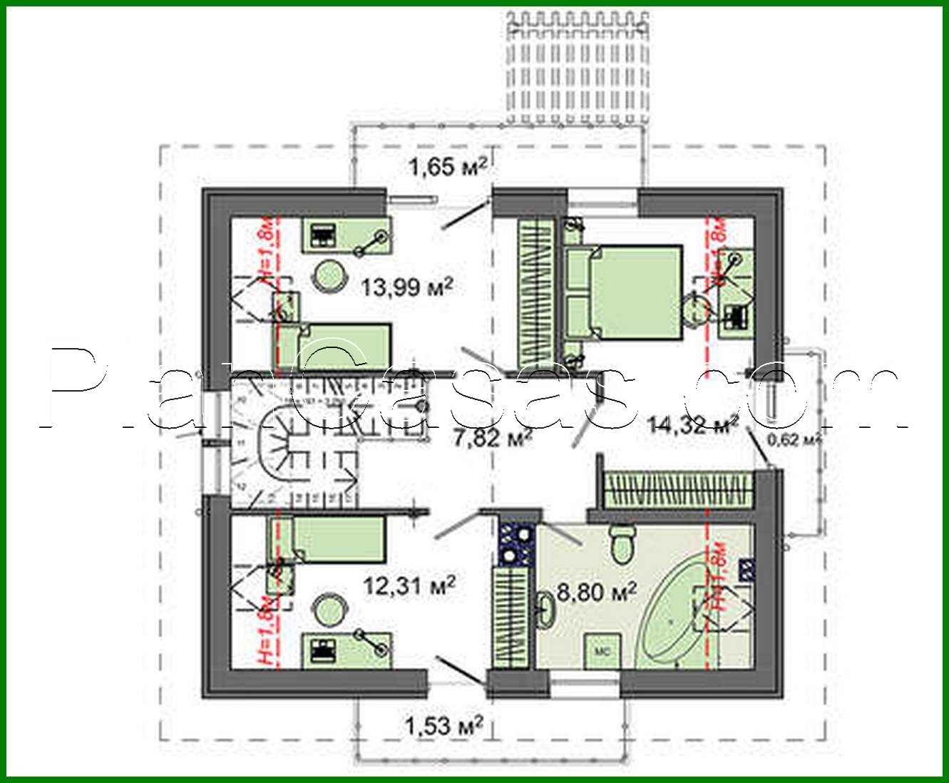
Project of a modern stylish house with a bay window and an unusual balcony Number of floors: 2 Total area: 124.91 m2 Living Area: 73.47 m2 House height: 7.91 m Ceiling Height: 2.80 m Roof Angle: 32 ° Roof area: 122.00 m2 Cubic capacity: 302.00 m3 Number of bedrooms: 4 Number of bathrooms: 2 Minimum plot size (length): 16.50 m Minimum plot size (width): 18.50 m Built-up area: 108.9 m2 Materials: Walls: aerated concrete blocks Overlap: monolithic overlap Roofing: rebate Foundation: monolithic tape

Interested in this plan?

Contact us to get full blueprints, construction estimate, or adapt this plan to your plot and needs.

Request more information

Visualization gallery