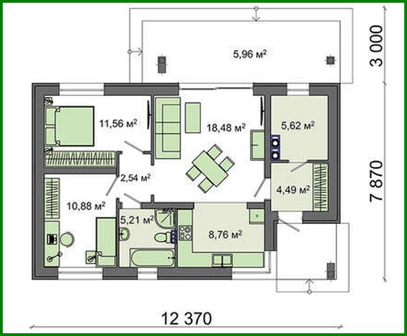
The project of a compact one-story house with a corner kitchen window

74 m² total area / 797 ft² 1 floor 2 bedrooms 1 bathroom
The project of a compact one-story house with a corner kitchen window
Click to view

Description

The project of a compact one-story house with a corner kitchen window Number of floors: 1 Total area: 73.50 m2 Living Area: 40.92 m2 House height: 5.86 m Ceiling Height: 2.80 m Roof Angle: 28 ° Roof area: 147.00 m2 Cubature: 200.00 m3 Number of bedrooms: 2 Number of bathrooms: 1 Minimum plot size (length): 16.00 m Minimum plot size (width): 20.00 m Built-up area: 127.4 m2 Materials: Walls: aerated concrete blocks Ceiling: on wooden beams Roofing: metal tile, ceramic tile, bitumen Foundation: monolithic tape

Interested in this plan?

Contact us to get full blueprints, construction estimate, or adapt this plan to your plot and needs.

Request more information

Visualization gallery