Small house 50 m2

50 m² total area / 538 ft² 1 floor 1 bedroom 1 bathroom
Small house 50 m2
Click to view

Description

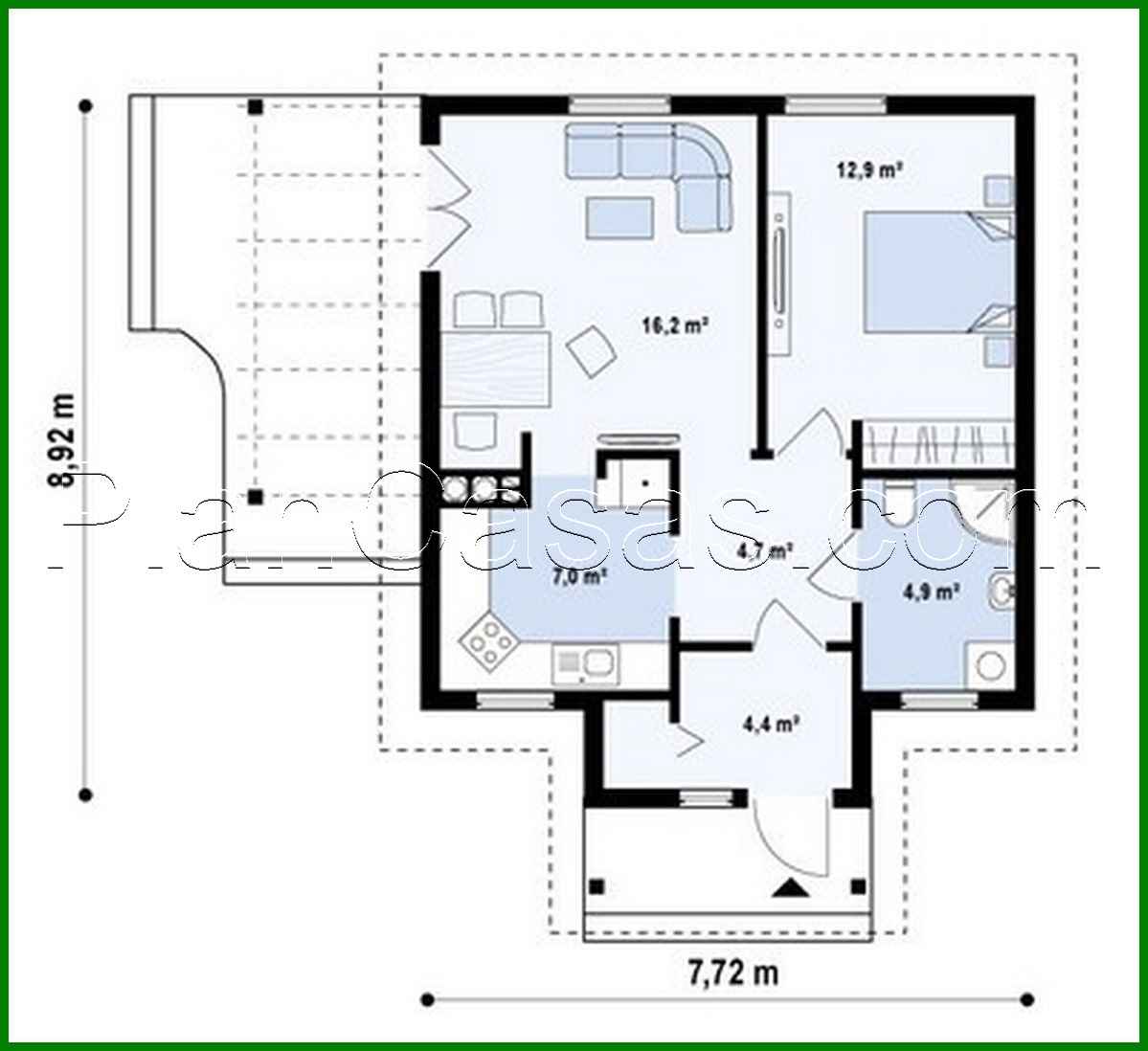
Small house 50 m² Number of floors: 1 Total area: 50.10 m2 House height: 6.18 m Ceiling Height: 2.80 m Roof Angle: 35 ° Roof area: 98.00 m2 Cubic capacity: 140.00 m3 Number of bedrooms: 1 Number of bathrooms: 1 Minimum plot size (length): 16.92 m Minimum plot size (width): 14.72 m Built-up area: 64 m2 Materials: Walls: aerated concrete, ceramic blocks Ceiling: on wooden beams Roofing: ceramic tile, metal tile, cement-sand tile Foundation: monolithic tape band

Interested in this plan?

Contact us to get full blueprints, construction estimate, or adapt this plan to your plot and needs.

Request more information

Visualization gallery