The project of a cottage with an attic, a garage and a cozy beautiful terrace

128 m² total area / 1378 ft² 1 floor 4 bedrooms 2 bathrooms
The project of a cottage with an attic, a garage and a cozy beautiful terrace
Click to view

Description

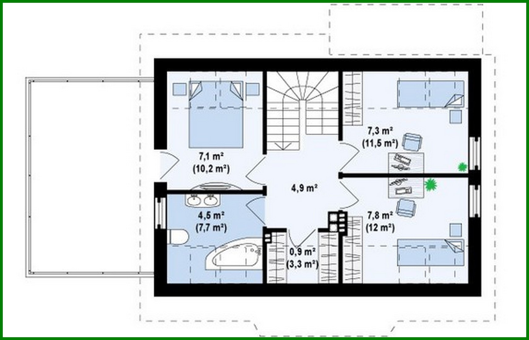
The project of a cottage with an attic, a garage and a cozy beautiful terrace Number of floors: 2 Total area: 128.00 m2 Living Area: 93.80 m2 House height: 7.32 m Ceiling Height: 2.80 m Roof Angle: 40 ° Roof area: 112.00 m2 Cubic capacity: 316.70 m3 Number of bedrooms: 4 Number of bathrooms: 2 Garage: Garage for one car Minimum plot size (length): 17.14 m Minimum plot size (width): 20.74 m Built-up area: 93 m2 Materials: Walls: aerated concrete, ceramic blocks Overlap: monolithic overlap Roofing: ceramic tile, metal tile, cement-sand tile Foundation: monolithic tape band

Interested in this plan?

Contact us to get full blueprints, construction estimate, or adapt this plan to your plot and needs.

Request more information

Visualization gallery