The project of a fabulous house

112 m² total area / 1206 ft² 1 floor 3 bedrooms 2 bathrooms
The project of a fabulous house
Click to view

Description

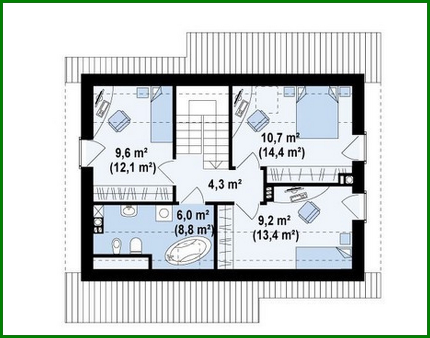
The project of a fabulous house Number of floors: 2 Total area: 111.50 m2 Living Area: 98.30 m2 House height: 7.20 m Ceiling Height: 2.80 m Roof Angle: 35 ° Roof area: 133.00 m2 Cubic capacity: 273.70 m3 Number of bedrooms: 3 Number of bathrooms: 2 Minimum plot size (length): 15.44 m Minimum plot size (width): 18.18 m Built-up area: 75 m2 Materials: Walls: aerated concrete, ceramic blocks Overlap: monolithic overlap Roofing: ceramic tile, metal tile, cement-sand tile Foundation: monolithic tape band

Interested in this plan?

Contact us to get full blueprints, construction estimate, or adapt this plan to your plot and needs.

Request more information

Visualization gallery