The project of a cottage for two families with different entrances

198 m² total area / 2131 ft² 2 floors 4 bedrooms 3 bathrooms
The project of a cottage for two families with different entrances
Click to view

Description

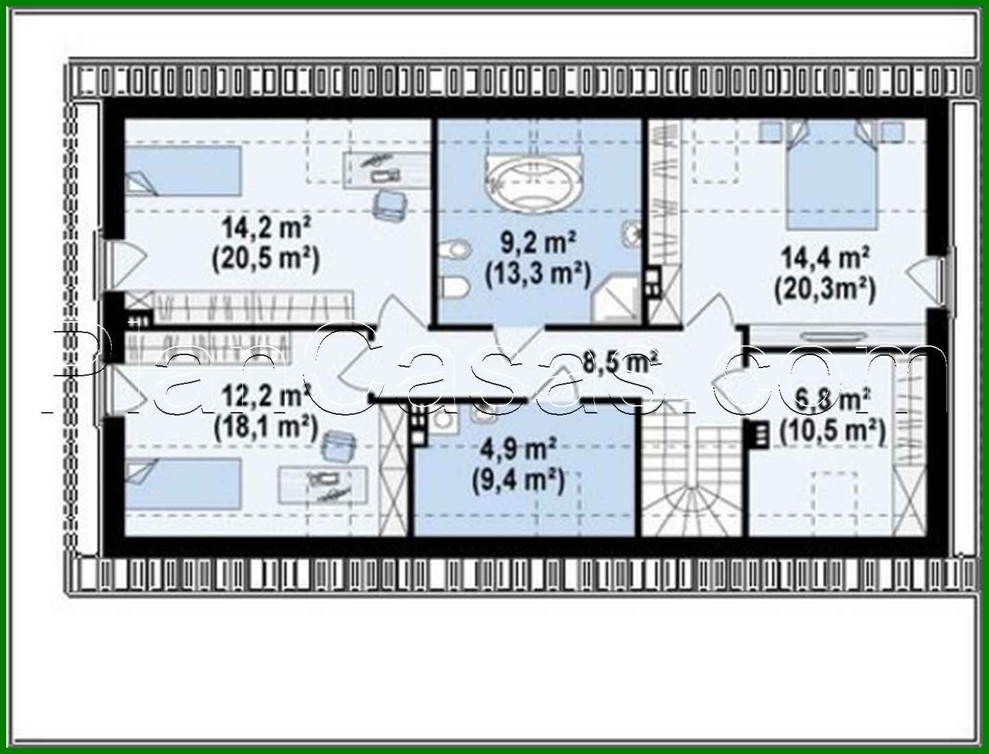
The project of a cottage for two families with different entrances Number of floors: 2 Total Area: 197.70 m2 Living Area: 167.40 m2 House height: 7.31 m Ceiling Height: 2.80 m Roof Angle: 35 ° Roof area: 184.00 m2 Cubature: 470.10 m3 Number of bedrooms: 4 Number of bathrooms: 3 Minimum plot size (length): 16.34 m Minimum plot size (width): 23.30 m Built-up area: 122 m2 Materials: Walls: aerated concrete, ceramic blocks Overlap: monolithic overlap Roofing: ceramic tile, metal tile, cement-sand tile Foundation: monolithic tape band

Interested in this plan?

Contact us to get full blueprints, construction estimate, or adapt this plan to your plot and needs.

Request more information

Visualization gallery