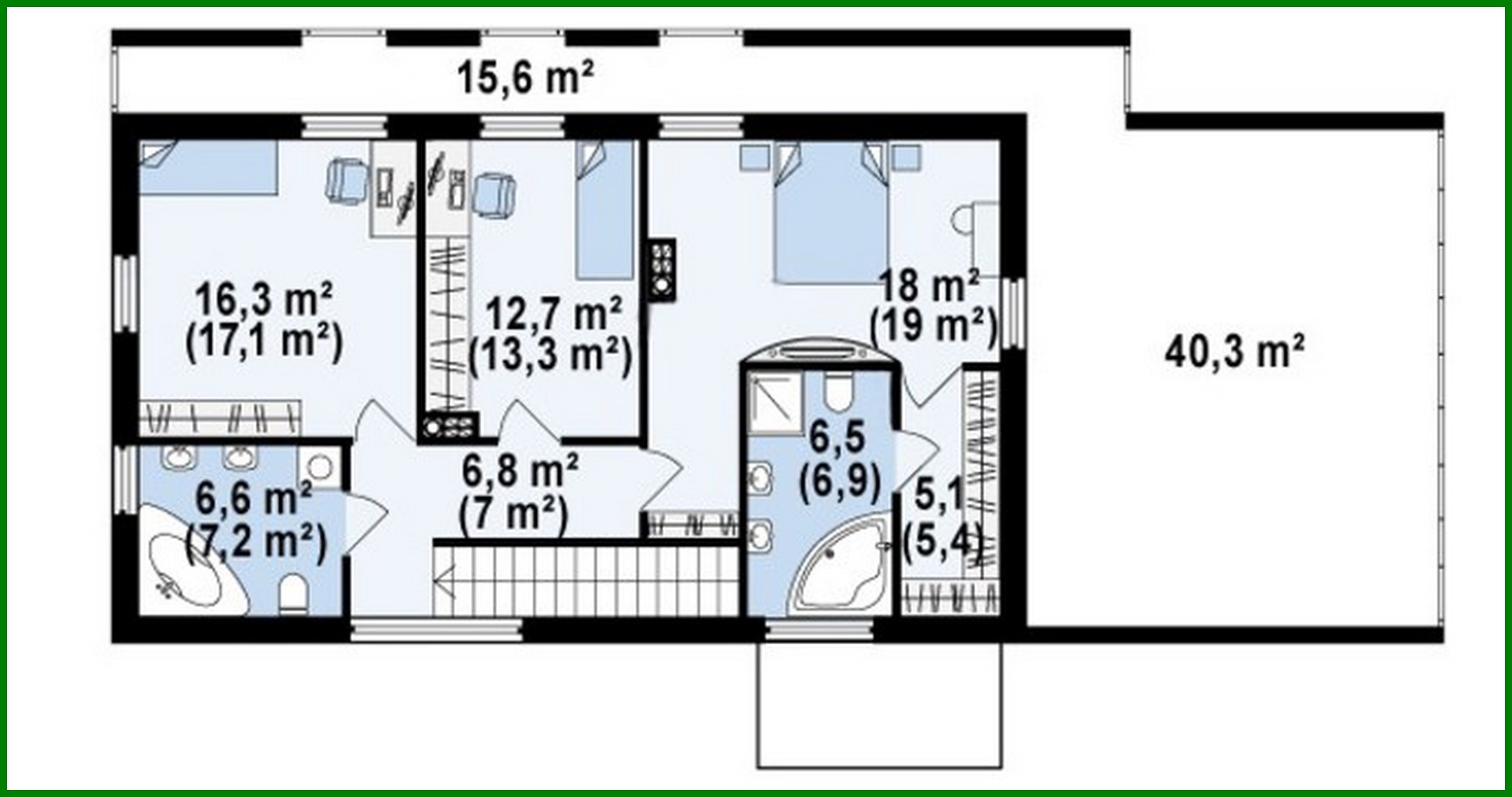
The project of a modern house with a simple layout

195 m² total area / 2099 ft² 2 floors 3 bedrooms 3 bathrooms
The project of a modern house with a simple layout
Click to view

Description

The project of a modern house with a simple layout Number of floors: 2 Total area: 195.10 m2 Living Area: 152.00 m2 House height: 7.57 m Ceiling Height: 2.80 m Roof Angle: 30 ° Roof area: 121.00 m2 Cubic capacity: 515.20 m3 Number of bedrooms: 3 Number of bathrooms: 3 Garage: Two-car garage Minimum plot size (length): 18.64 m Minimum plot size (width): 27.18 m Materials: Walls: aerated concrete, ceramic blocks Overlap: monolithic overlap Roofing: ceramic tile, metal tile, cement-sand tile Foundation: monolithic tape band

Interested in this plan?

Contact us to get full blueprints, construction estimate, or adapt this plan to your plot and needs.

Request more information

Visualization gallery