Project of a modern cottage with a terrace and a garage for 2 cars

182 m² total area / 1959 ft² 2 floors 4 bedrooms 2 bathrooms
Project of a modern cottage with a terrace and a garage for 2 cars
Click to view

Description

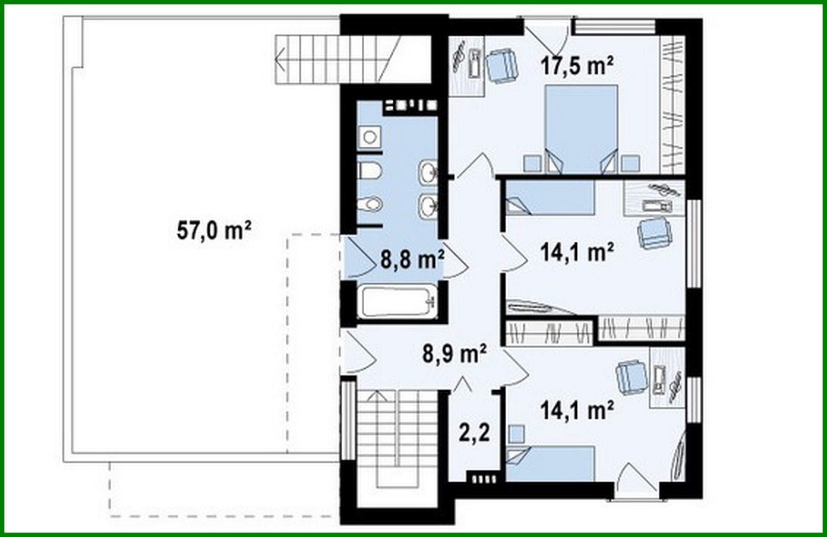
Project of a modern cottage with a terrace and a garage for 2 cars Number of floors: 2 Total area: 181.50 m2 Living Area: 139.30 m2 House height: 7.10 m Ceiling Height: 2.80 m Roof Angle: 3 ° Roof area: 75.00 m2 Cubic capacity: 480.70 m3 Number of bedrooms: 4 Number of bathrooms: 2 Garage: Two-car garage Minimum plot size (length): 19.04 m Minimum plot size (width): 22.34 m Materials: Walls: aerated concrete, ceramic blocks Overlap: monolithic overlap Roofing: PVC membrane Foundation: monolithic tape band

Interested in this plan?

Contact us to get full blueprints, construction estimate, or adapt this plan to your plot and needs.

Request more information

Visualization gallery