The project of a two-story house with large windows

212 m² total area / 2282 ft² 2 floors 4 bedrooms 3 bathrooms
The project of a two-story house with large windows
Click to view

Description

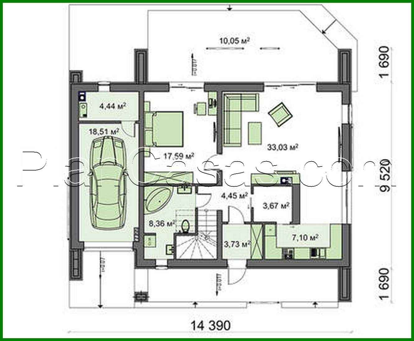
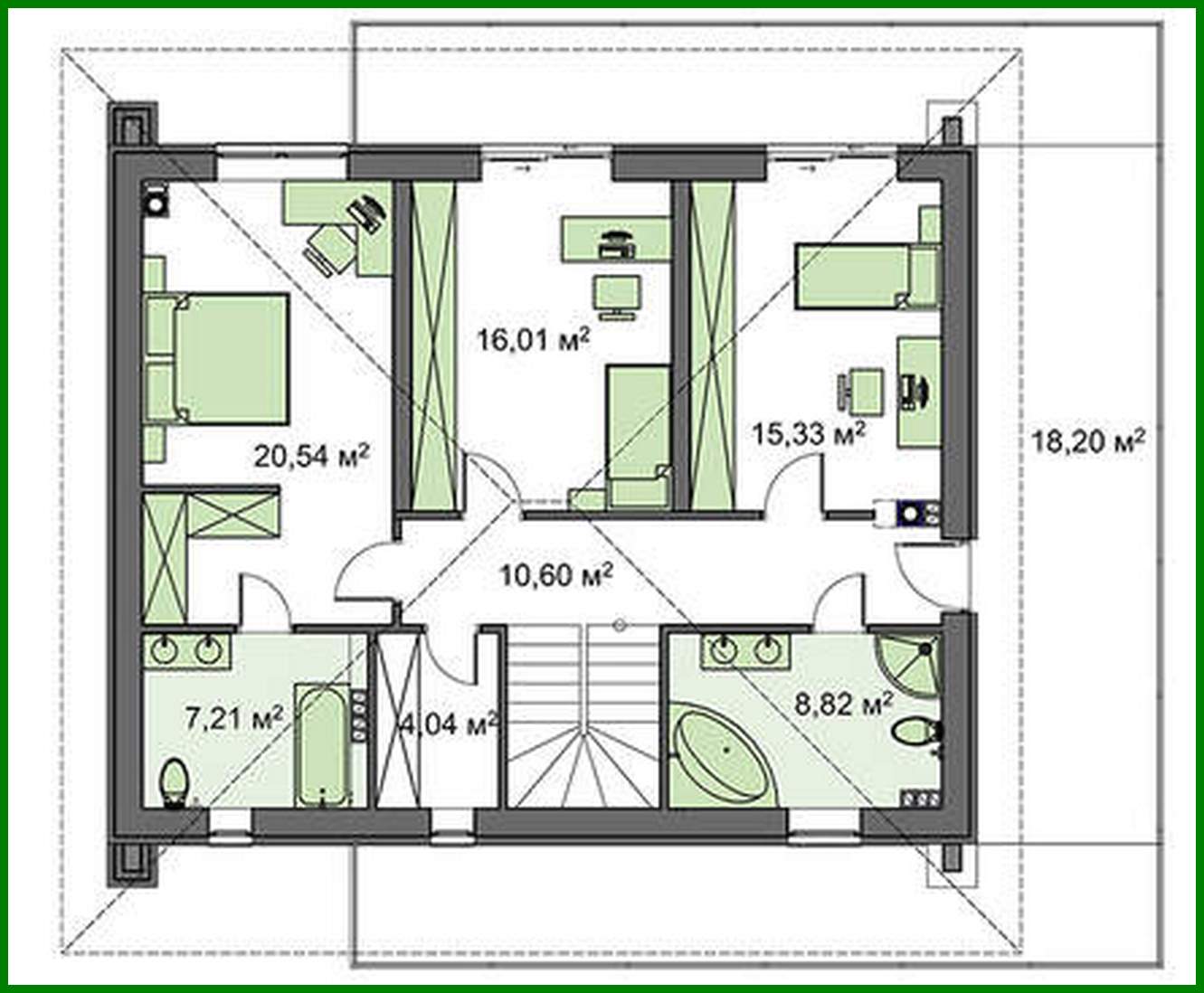
The project of a two-story house with large windows Number of floors: 2 Total area: 211.68 m2 Living Area: 102.50 m2 House height: 8.52 m Ceiling Height: 2.80 m Roof Angle: 20 ° Roof area: 171.00 m2 Cubature: 470.80 m3 Number of bedrooms: 4 Number of bathrooms: 3 Garage: Garage for one car Minimum plot size (length): 20.54 m Minimum plot size (width): 21.04 m Built-up area: 223.87 m2 Materials: Walls: Aerated concrete blocks, brick Overlap: monolithic overlap Roofing: rebate Foundation: monolithic tape

Interested in this plan?

Contact us to get full blueprints, construction estimate, or adapt this plan to your plot and needs.

Request more information

Visualization gallery