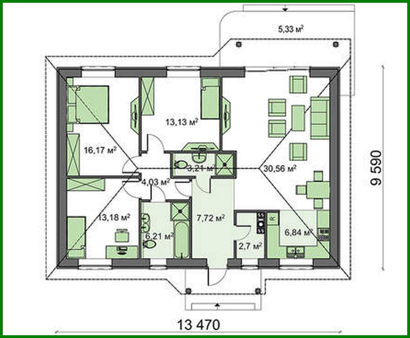
Single-storey classic house project

109 m² total area / 1173 ft² 1 floor 3 bedrooms 2 bathrooms
Single-storey classic house project
Click to view

Description

Single-storey classic house project Number of floors: 1 Total area: 109.08 m2 Living Area: 73.04 m2 House height: 6.40 m Ceiling Height: 2.80 m Roof Angle: 30 ° / 35 ° ° Roof area: 189.00 m2 Cubic capacity: 271.10 m3 Number of bedrooms: 3 Number of bathrooms: 2 Minimum plot size (length): 17.18 m Minimum plot size (width): 19.40 m Built-up area: 155.57 m2 Materials: Walls: aerated concrete blocks Ceiling: on wooden beams Roofing: metal tile, ceramic tile, bitumen Foundation: monolithic tape

Interested in this plan?

Contact us to get full blueprints, construction estimate, or adapt this plan to your plot and needs.

Request more information

Visualization gallery