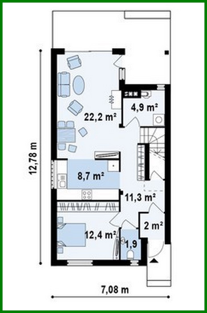
The project of a country energy-saving house for a narrow site

126 m² total area / 1356 ft² 2 floors 4 bedrooms 2 bathrooms
The project of a country energy-saving house for a narrow site
Click to view

Description

The project of a country energy-saving house for a narrow site Number of floors: 2 Total area: 126.40 m2 House height: 8.20 m Ceiling Height: 2.80 m Roof Angle: 35 ° Roof area: 145.00 m2 Cubic capacity: 336.00 m3 Number of bedrooms: 4 Number of bathrooms: 2 Minimum plot size (length): 14.08 m Minimum plot size (width): 20.78 m Materials: Walls: aerated concrete, ceramic blocks Overlap: monolithic overlap Roofing: ceramic tile, metal tile, cement-sand tile Foundation: monolithic tape band

Interested in this plan?

Contact us to get full blueprints, construction estimate, or adapt this plan to your plot and needs.

Request more information

Visualization gallery