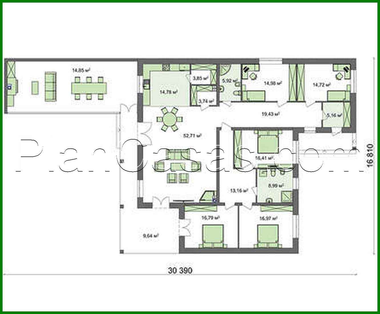
Architectural project of a house on several blocks

232 m² total area / 2497 ft² 1 floor 5 bedrooms 2 bathrooms
Architectural project of a house on several blocks
Click to view

Description

Architectural project of a house on several blocks Number of floors: 1 Total area: 232.10 m2 Living Area: 132.58 m2 House height: 6.50 m Ceiling Height: 3.00 m Roof Angle: 20 ° Roof Area: 429.94 m2 Number of bedrooms: 5 Number of bathrooms: 2 Minimum plot size (length): 38.00 m Minimum plot size (width): 25.00 m Built-up area: 347.43 m2 Materials: Walls: aerated concrete blocks Ceiling: on wooden beams Roofing: metal tile, ceramic tile, bitumen Foundation: monolithic tape

Interested in this plan?

Contact us to get full blueprints, construction estimate, or adapt this plan to your plot and needs.

Request more information

Visualization gallery