Plan of a beautiful two-story house with an area of 322 square meters. m with ground floor

322 m² total area / 3466 ft² 2 floors 3 bedrooms 2 bathrooms
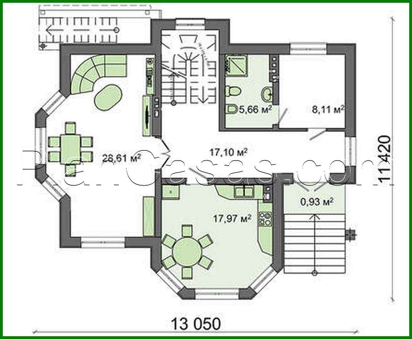
Plan of a beautiful two-story house with an area of 322 square meters. m with ground floor
Click to view

Description

Plan of a beautiful two-story house with an area of 322 square meters. m with ground floor Number of floors: 3 Total area: 321.82 m2 Living Area: 121.10 m2 House height: 10.46 m Ceiling Height: 2.80 m Roof Angle: 35 ° Roof area: 238.00 m2 Number of bedrooms: 3 Number of bathrooms: 2 Minimum plot size (length): 20.50 m Minimum plot size (width): 18.50 m Built-up area: 126.24 m2 Ground floor area: 84.45 m2 Materials: Walls: aerated concrete blocks Overlap: monolithic overlap Roofing: ceramic tiles Foundation: monolithic tape

Interested in this plan?

Contact us to get full blueprints, construction estimate, or adapt this plan to your plot and needs.

Request more information

Visualization gallery