Stylish home with a second light

203 m² total area / 2185 ft² 2 floors 5 bedrooms 3 bathrooms
Stylish home with a second light
Click to view

Description

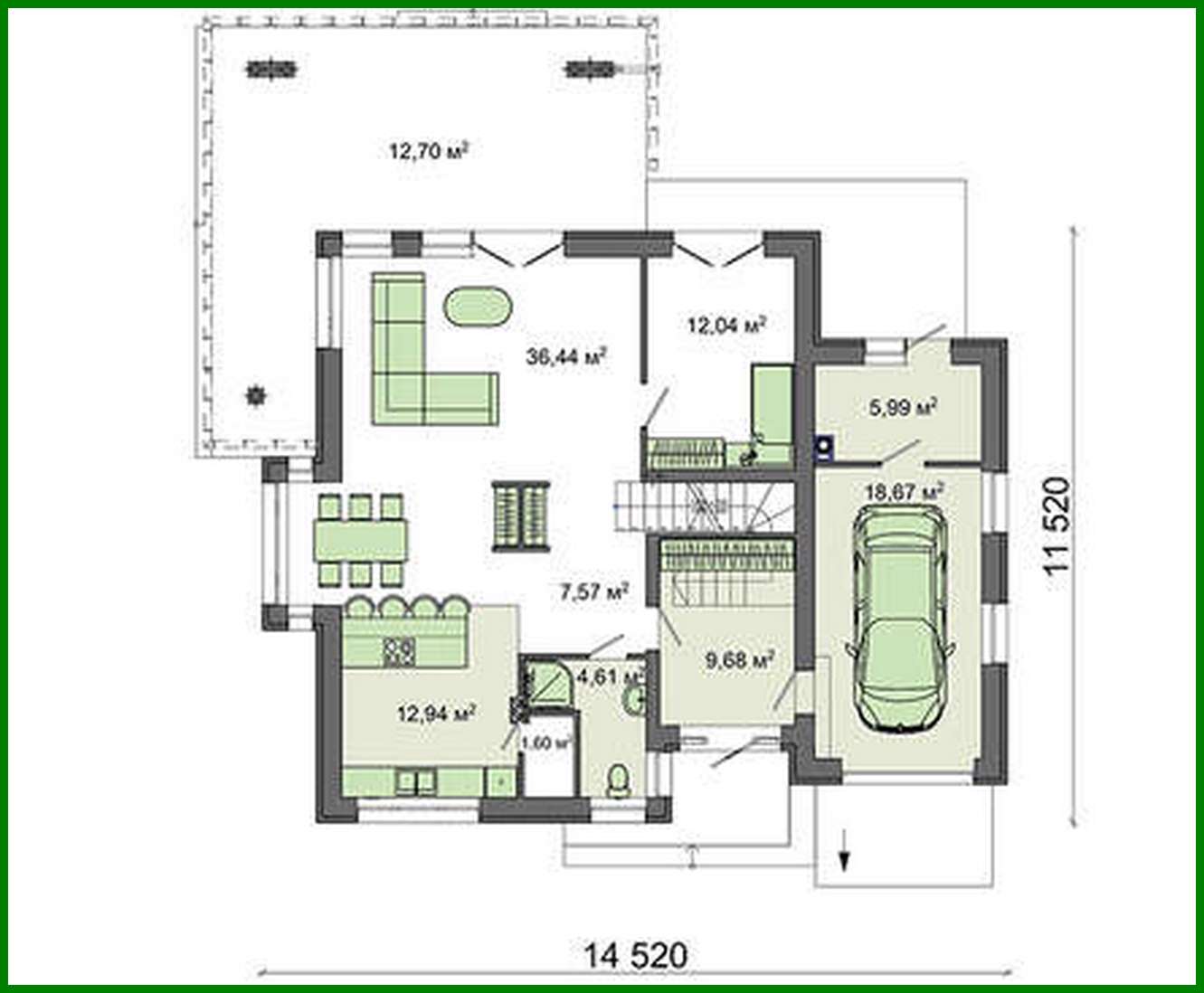
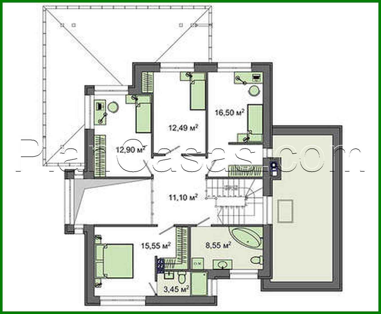
Stylish home with a second light Number of floors: 2 Total area: 202.78 m2 Living Area: 105.92 m2 House height: 9.16 m Ceiling Height: 2.80 m Roof Angle: 22 ° Roof area: 293.00 m2 Cubature: 593.40 m3 Number of bedrooms: 5 Number of bathrooms: 3 Garage: Garage for one car Minimum plot size (length): 20.50 m Minimum plot size (width): 22.50 m Built-up area: 217.89 m2 Materials: Walls: aerated concrete blocks Overlap: monolithic overlap Roofing: metal tile, ceramic tile, bitumen Foundation: monolithic tape

Interested in this plan?

Contact us to get full blueprints, construction estimate, or adapt this plan to your plot and needs.

Request more information

Visualization gallery