Project of a two-story cottage in white and chocolate design with a total area of 178 square meters. m

178 m² total area / 1916 ft² 2 floors 4 bedrooms 2 bathrooms
Project of a two-story cottage in white and chocolate design with a total area of 178 square meters. m
Click to view

Description

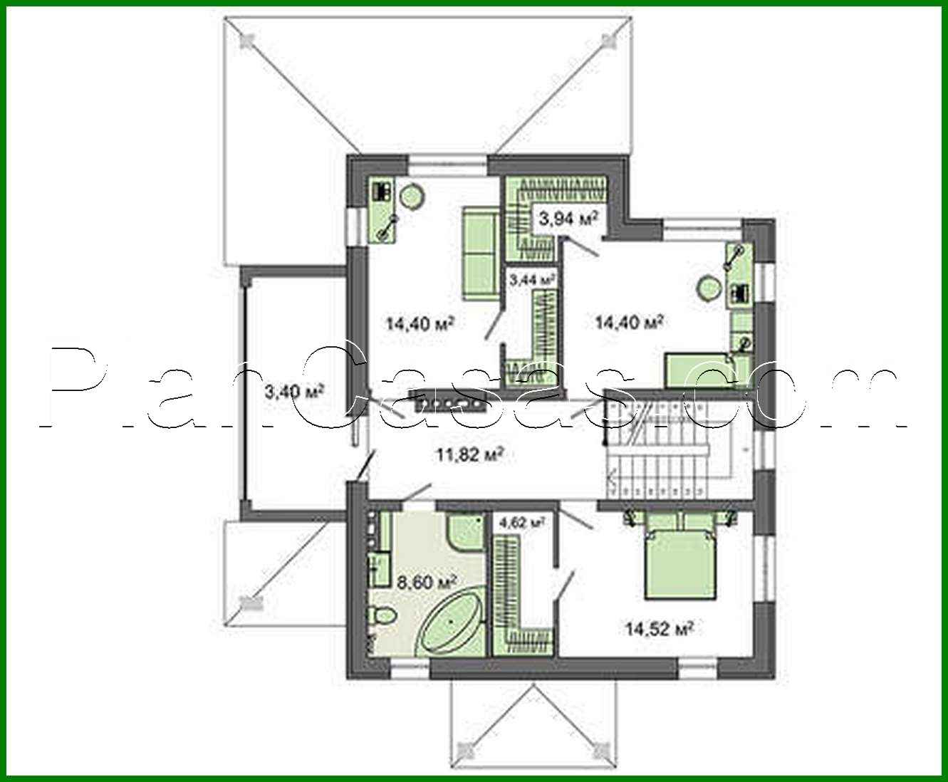
Project of a two-story cottage in white and chocolate design with a total area of 178 square meters. m Number of floors: 2 Total area: 178.31 m2 Living Area: 90.14 m2 House height: 9.34 m Ceiling Height: 3.00 m Roof Angle: 22 ° Roof area: 207.00 m2 Number of bedrooms: 4 Number of bathrooms: 2 Minimum plot size (length): 20.00 m Minimum plot size (width): 21.00 m Built-up area: 167.3 m2 Materials: Walls: Aerated concrete blocks, brick Overlap: floor slabs Roofing: metal Foundation: monolithic tape

Interested in this plan?

Contact us to get full blueprints, construction estimate, or adapt this plan to your plot and needs.

Request more information

Visualization gallery