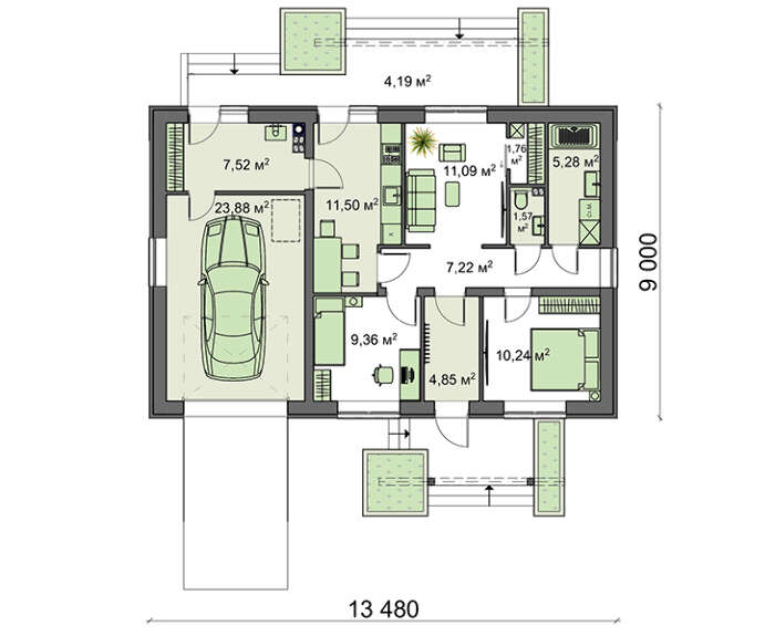
The project of a single-storey house in the European style with an area of 98 square meters with garage

98 m² total area / 1055 ft² 1 floor 2 bedrooms 2 bathrooms
The project of a single-storey house in the European style with an area of 98 square meters with garage
Click to view

Description

The project of a single-storey house in the European style with an area of 98 square meters. m with garage Number of floors: 1 Total area: 98.46 m2 Living Area: 30.69 m2 House height: 6.87 m Ceiling Height: 2.70 m Roof Angle: 30 ° Roof Area: 213.33 m2 Number of bedrooms: 2 Number of bathrooms: 2 Garage: Garage for one car Minimum plot size (length): 17.00 m Minimum plot size (width): 21.50 m Built-up area: 227.7 m2 Materials: Walls: aerated concrete blocks Ceiling: on wooden beams Roofing: metal tile, ceramic tile, bitumen Foundation: monolithic tape

Interested in this plan?

Contact us to get full blueprints, construction estimate, or adapt this plan to your plot and needs.

Request more information

Visualization gallery