Plan of a two-story house with a garage for 2 cars

288 m² total area / 3100 ft² 2 floors 5 bedrooms 2 bathrooms
Plan of a two-story house with a garage for 2 cars
Click to view

Description

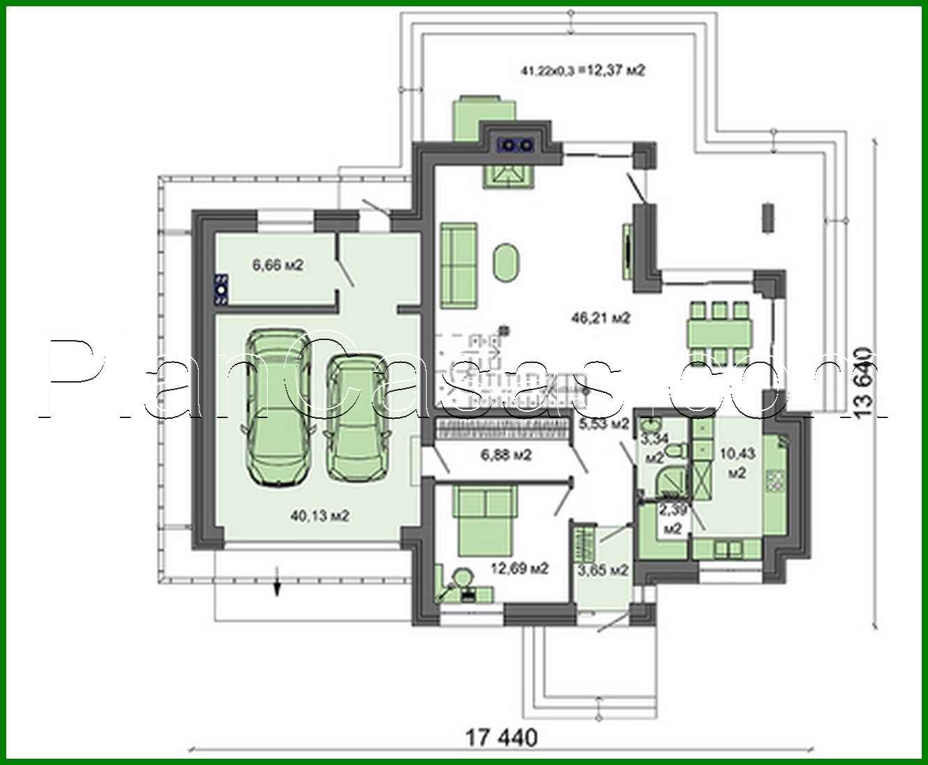
Plan of a two-story house with a garage for 2 cars Number of floors: 2 Total area: 287.66 m2 Living Area: 163.59 m2 House height: 8.98 m Ceiling Height: 2.80 m Roof Angle: 24 ° Roof Area: 279.50 m2 Number of bedrooms: 5 Number of bathrooms: 2 Garage: Two-car garage Minimum plot size (length): 25.50 m Minimum plot size (width): 20.50 m Built-up area: 271.73 m2 Materials: Walls: aerated concrete blocks Overlap: monolithic overlap Roofing: metal tile, ceramic tile, bitumen Foundation: monolithic tape

Interested in this plan?

Contact us to get full blueprints, construction estimate, or adapt this plan to your plot and needs.

Request more information

Visualization gallery