The project of a two-story house with a luxury garage

194 m² total area / 2088 ft² 2 floors 3 bedrooms 2 bathrooms
The project of a two-story house with a luxury garage
Click to view

Description

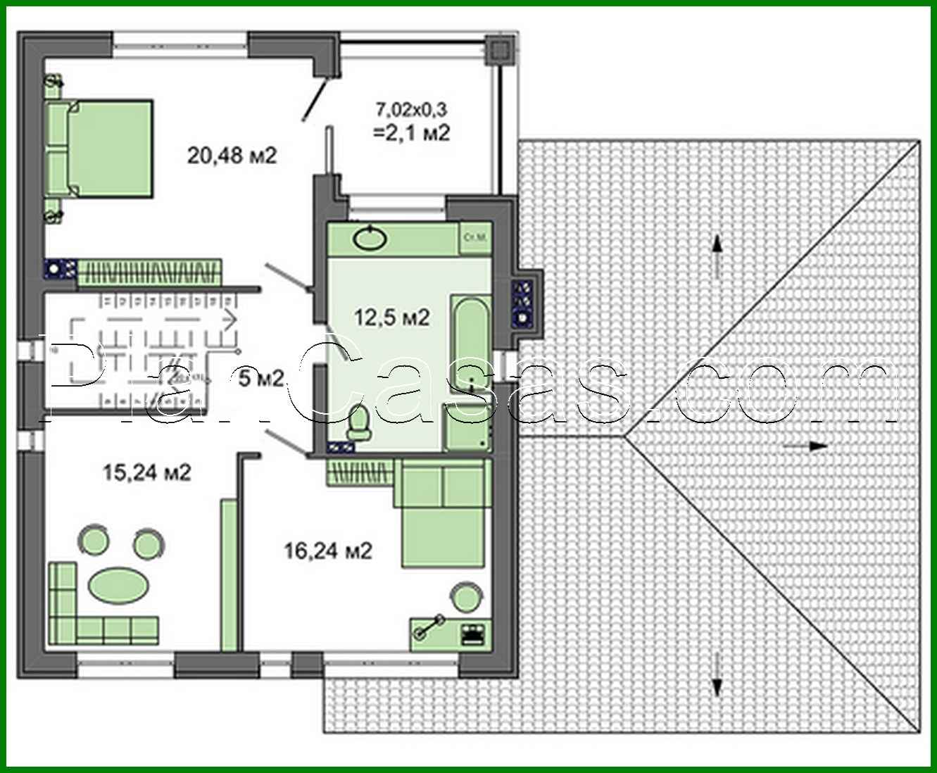
The project of a two-story house with a luxury garage Number of floors: 2 Total area: 193.98 m2 Living Area: 84.24 m2 House height: 9.20 m Ceiling Height: 3.00 m Roof Angle: 25/18 ° Roof area: 224.00 m2 Number of bedrooms: 3 Number of bathrooms: 2 Garage: Two-car garage Minimum plot size (length): 22.00 m Minimum plot size (width): 20.00 m Built-up area: 203 m2 Materials: Walls: aerated concrete blocks Overlap: monolithic overlap Roofing: metal tile, ceramic tile, bitumen Foundation: monolithic tape

Interested in this plan?

Contact us to get full blueprints, construction estimate, or adapt this plan to your plot and needs.

Request more information

Visualization gallery