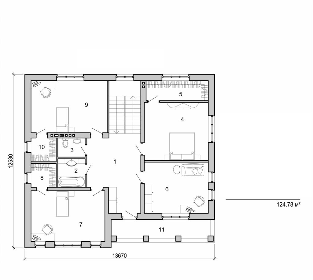
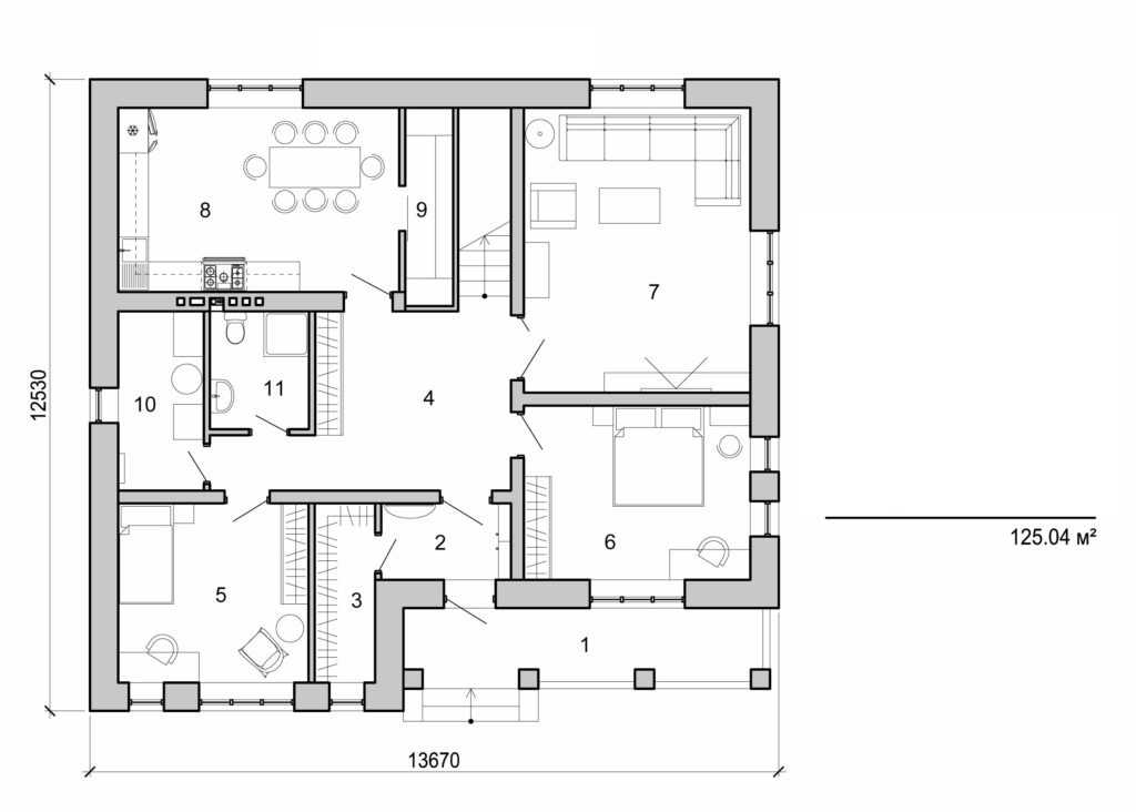
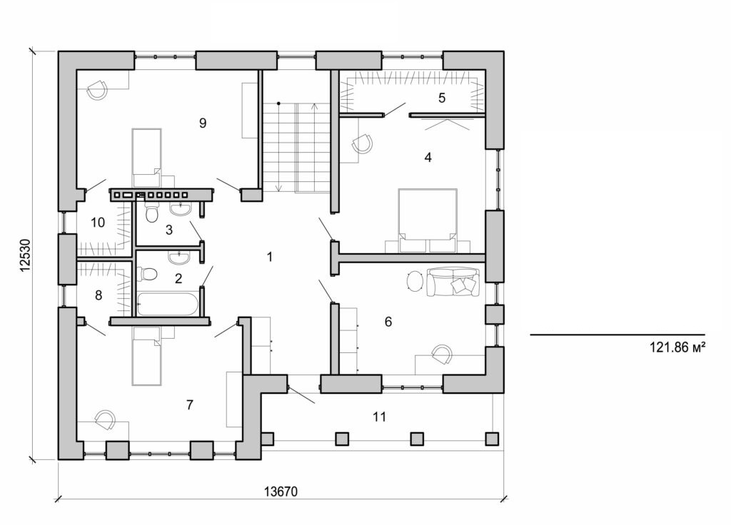
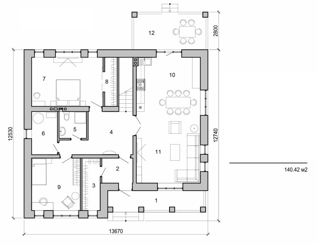
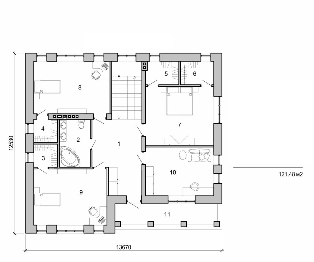
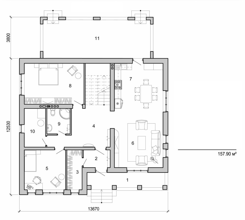
Two storey cottage

247 m² total area / 2659 ft² 2 floors bedrooms
Two storey cottage
Click to view

Interested in this plan?

Contact us to get full blueprints, construction estimate, or adapt this plan to your plot and needs.

Request more information

Visualization gallery