Architectural project of a country mansion with a terrace

377 m² total area / 4058 ft² 2 floors 6 bedrooms 4 bathrooms
Architectural project of a country mansion with a terrace
Click to view

Description

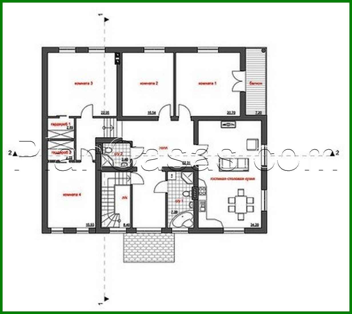
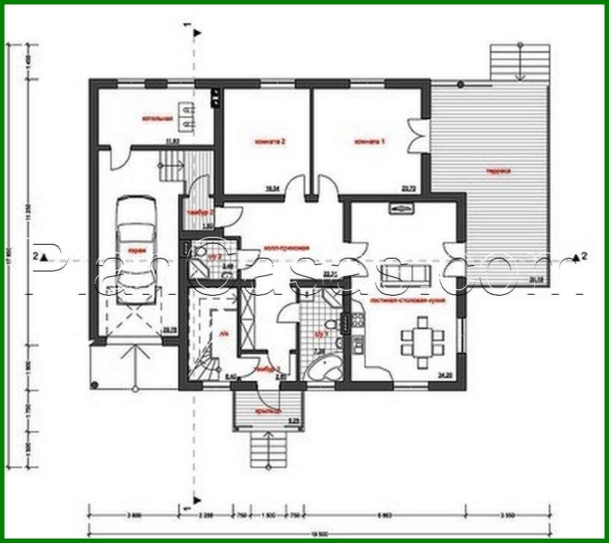
Architectural project of a country mansion with a terrace Number of floors: 2 Total area: 376.60 m2 Number of bedrooms: 6 Number of bathrooms: 4 Garage: Garage for one car Minimum plot size (length): 22.00 m Minimum plot size (width): 24.00 m Materials: Walls: stone Overlap: monolithic overlap Roofing: metal tile, ceramic tile, bitumen Foundation: monolithic tape

Interested in this plan?

Contact us to get full blueprints, construction estimate, or adapt this plan to your plot and needs.

Request more information

Visualization gallery