Design of a modern cottage with a spacious terrace above the garage

314 m² total area / 3380 ft² 2 floors 5 bedrooms 2 bathrooms
Design of a modern cottage with a spacious terrace above the garage
Click to view

Description

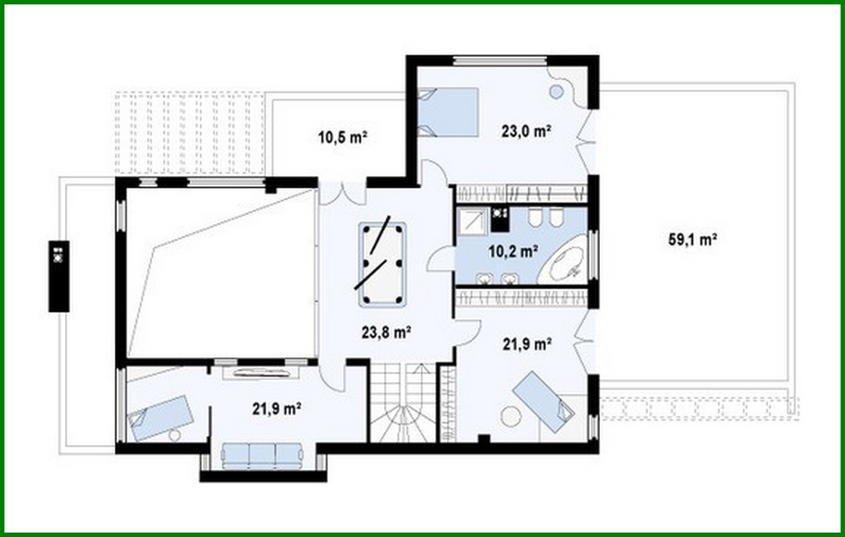
Design of a modern cottage with a spacious terrace above the garage Number of floors: 2 Total area: 314.00 m2 Living Area: 257.00 m2 House height: 8.00 m Ceiling Height: 2.80 m Roof Angle: 10 ° Roof area: 121.00 m2 Cubature: 951.00 m3 Number of bedrooms: 5 Number of bathrooms: 2 Garage: Two-car garage Minimum plot size (length): 31.00 m Minimum plot size (width): 20.00 m Materials: Walls: aerated concrete, ceramic blocks, silicate blocks Overlap: monolithic overlap Roofing: PVC membrane Foundation: monolithic tape band

Interested in this plan?

Contact us to get full blueprints, construction estimate, or adapt this plan to your plot and needs.

Request more information

Visualization gallery