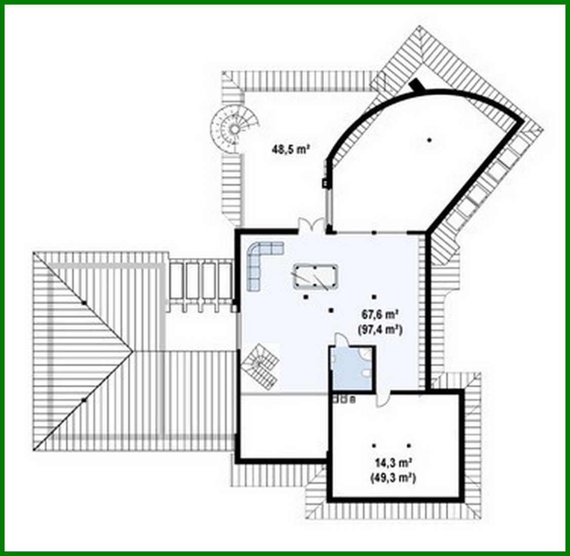
The project of a comfortable classic mansion with a garage for two cars

509 m² total area / 5479 ft² 2 floors 3 bedrooms 5 bathrooms
The project of a comfortable classic mansion with a garage for two cars
Click to view

Description

The project of a comfortable classic mansion with a garage for two cars Number of floors: 2 Total area: 509.40 m2 Living Area: 400.00 m2 House height: 8.61 m Ceiling Height: 2.80 m Roof Angle: 32 ° Roof area: 592.00 m2 Cubic capacity: 1803.00 m3 Number of bedrooms: 3 Number of bathrooms: 5 Garage: Two-car garage Minimum plot size (length): 37.70 m Minimum plot size (width): 34.83 m Materials: Walls: aerated concrete, ceramic blocks Overlap: monolithic overlap Roofing: ceramic tile, metal tile, cement-sand tile Foundation: monolithic tape band

Interested in this plan?

Contact us to get full blueprints, construction estimate, or adapt this plan to your plot and needs.

Request more information

Visualization gallery