The project of a modern European house with a garage and two terraces with a total area of ​​164 square meters. 

164 m² total area / 1765 ft² 1 floor 3 bedrooms 3 bathrooms
The project of a modern European house with a garage and two terraces with a total area of ​​164 square meters. 
Click to view

Description

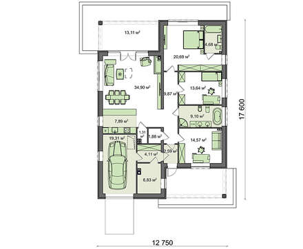
The project of a modern European house with a garage and two terraces with a total area of ​​164 square meters. Number of floors: 1 Total area: 164.48 m2 Living Area: 83.80 m2 House height: 6.73 m Ceiling Height: 2.00 m Roof Angle: 25 ° Roof Area: 296.64 m2 Number of bedrooms: 3 Number of bathrooms: 3 Garage: Garage for one car Minimum plot size (length): 25.50 m Minimum plot size (width): 21.00 m Built-up area: 275.93 m2 Materials: Walls: aerated concrete blocks Ceiling: on wooden beams Roofing: metal tile, ceramic tile, bitumen Foundation: monolithic tape

Interested in this plan?

Contact us to get full blueprints, construction estimate, or adapt this plan to your plot and needs.

Request more information

Visualization gallery