Elegant house with open terraces and balconies

193 m² total area / 2077 ft² 2 floors 3 bedrooms 2 bathrooms
Elegant house with open terraces and balconies
Click to view

Description

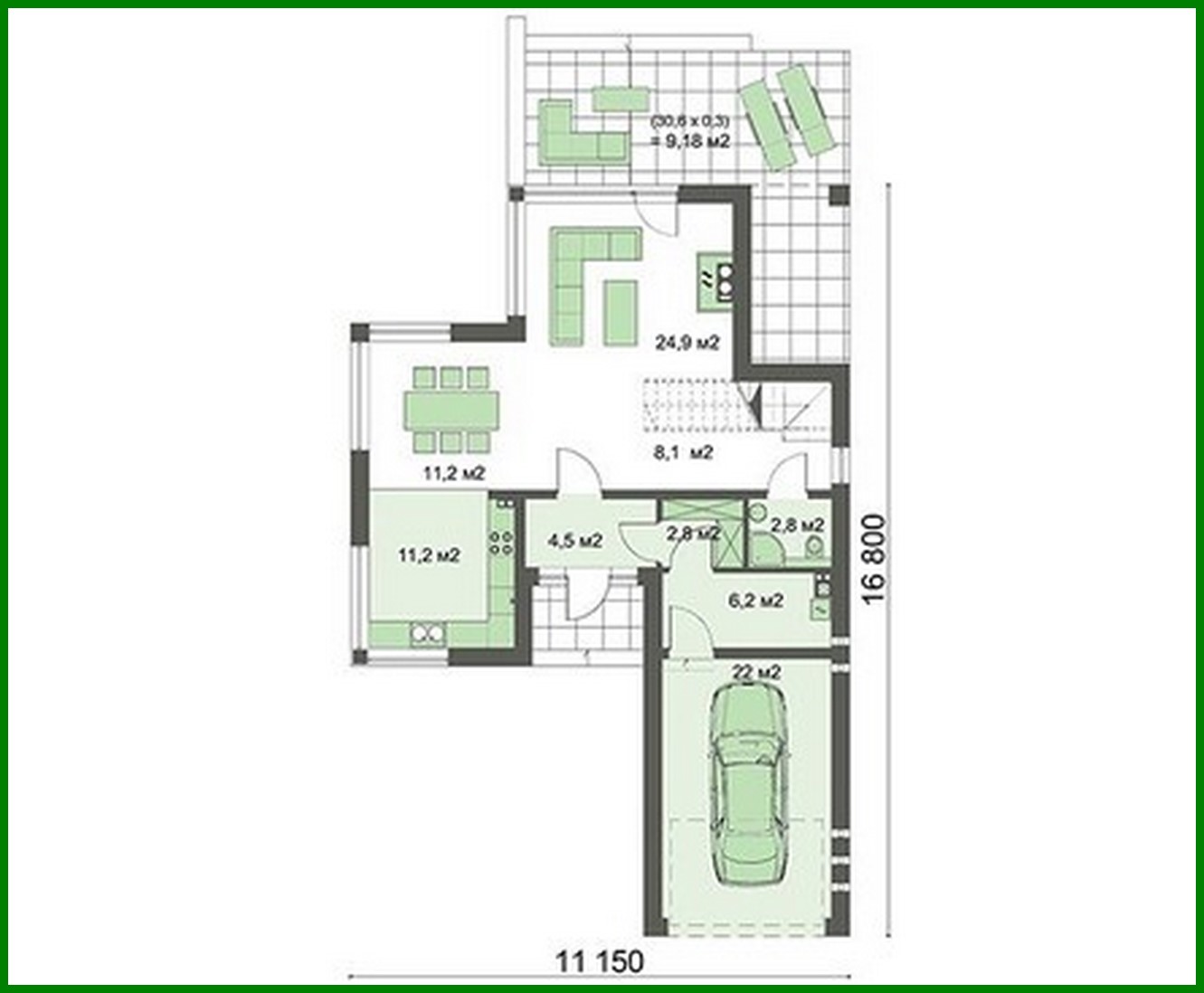
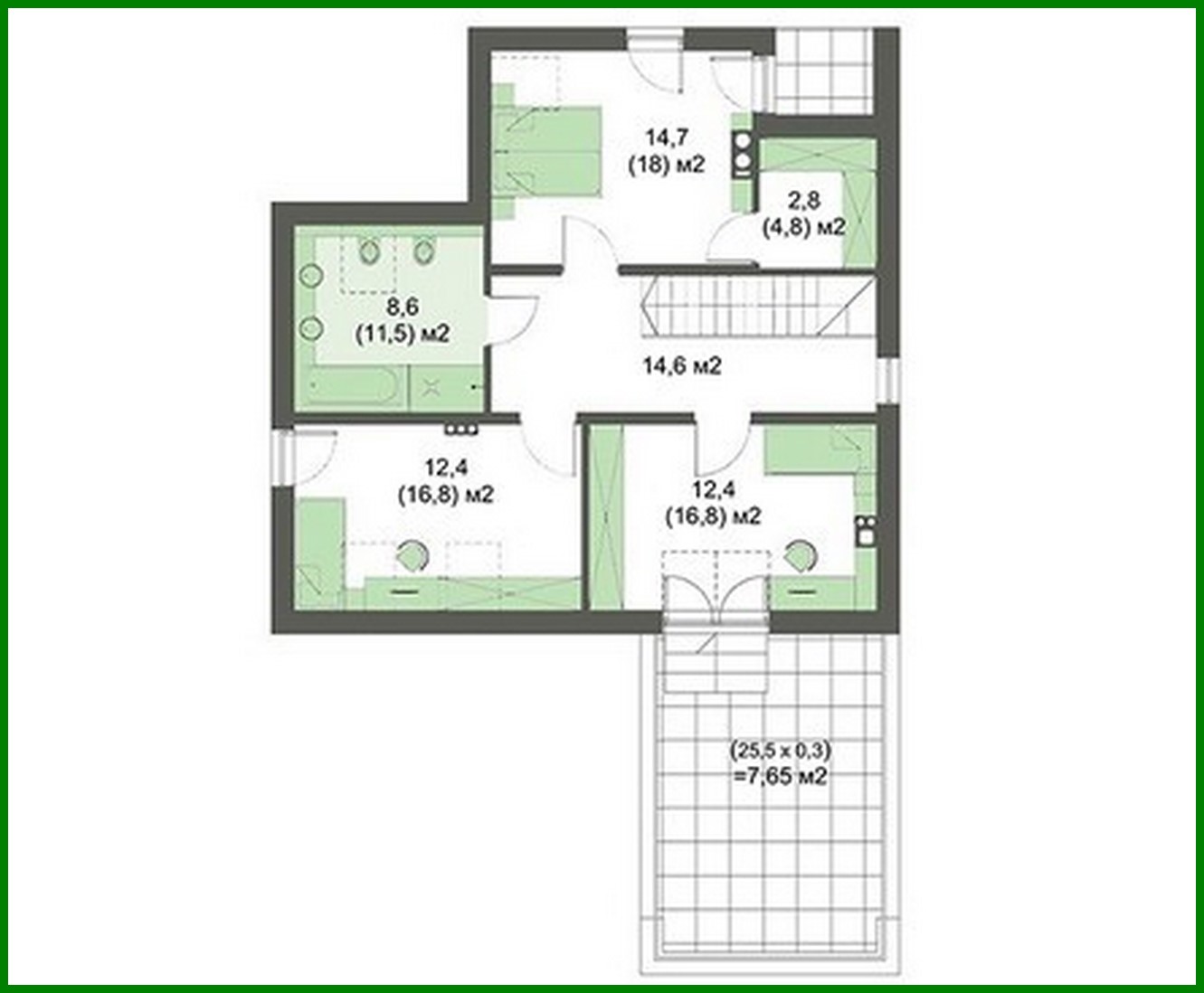
Elegant house with open terraces and balconies Number of floors: 2 Total area: 193.03 m2 Living Area: 94.90 m2 House height: 7.65 m Ceiling Height: 2.80 m Roof Angle: 37 ° Cubic capacity: 882.00 m3 Number of bedrooms: 3 Number of bathrooms: 2 Garage: Garage for one car Minimum plot size (length): 18.00 m Minimum plot size (width): 22.50 m Built-up area: 136.84 m2 Materials: Walls: aerated concrete, ceramic blocks Overlap: monolithic overlap Roofing: rebate Foundation: monolithic tape

Interested in this plan?

Contact us to get full blueprints, construction estimate, or adapt this plan to your plot and needs.

Request more information

Visualization gallery