Classic two-story house with a garage

164 m² total area / 1765 ft² 2 floors 3 bedrooms 2 bathrooms
Classic two-story house with a garage
Click to view

Description

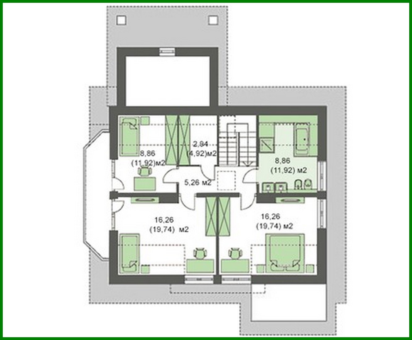
Classic two-story house with a garage Number of floors: 2 Total area: 163.55 m2 Living Area: 94.44 m2 House height: 8.00 m Ceiling Height: 2.80 m Roof Angle: 38 ° Roof area: 233.00 m2 Cubic capacity: 754.00 m3 Number of bedrooms: 3 Number of bathrooms: 2 Garage: Garage for one car Minimum plot size (length): 18.50 m Minimum plot size (width): 21.00 m Built-up area: 136 m2 Materials: Walls: aerated concrete, ceramic blocks Overlap: monolithic overlap Roofing: ceramic tile, metal tile, cement-sand tile Foundation: monolithic tape

Interested in this plan?

Contact us to get full blueprints, construction estimate, or adapt this plan to your plot and needs.

Request more information

Visualization gallery