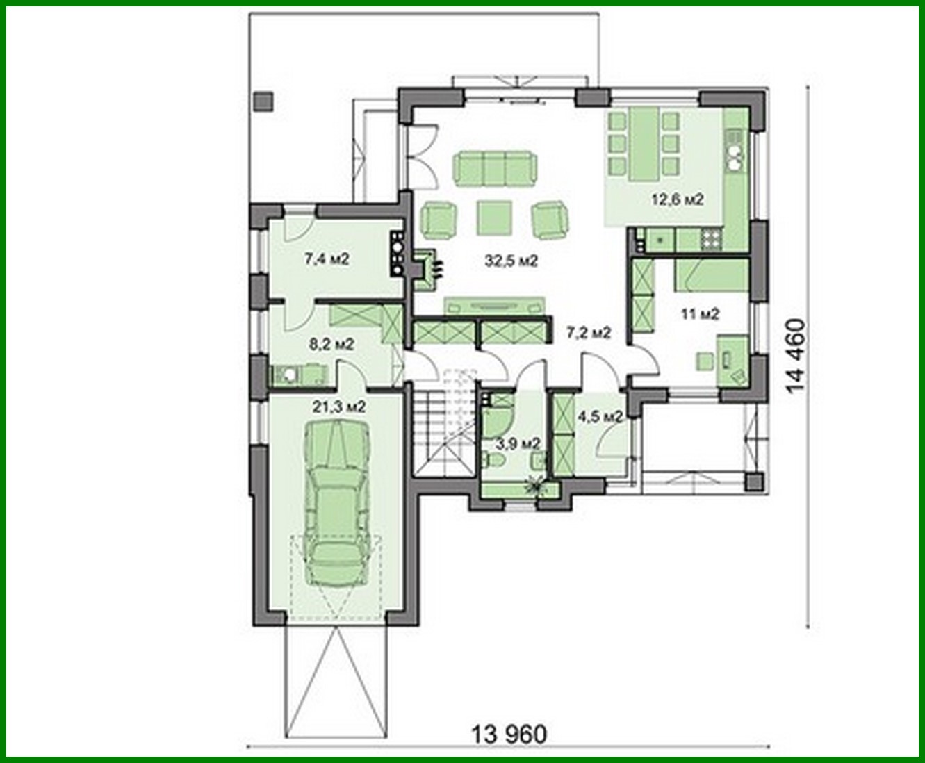
A solid five-bedroom country house project

207 m² total area / 2228 ft² 2 floors 5 bedrooms 3 bathrooms
A solid five-bedroom country house project
Click to view

Description

A solid five-bedroom country house project Number of floors: 2 Total area: 207.40 m2 Living Area: 131.10 m2 House height: 8.20 m Ceiling Height: 2.80 m Roof Angle: 30 ° Roof Area: 157.40 m2 Cubic capacity: 624.20 m3 Number of bedrooms: 5 Number of bathrooms: 3 Garage: Garage for one car Minimum plot size (length): 21.50 m Minimum plot size (width): 22.50 m Built-up area: 169.5 m2 Materials: Walls: aerated concrete, ceramic blocks Overlap: monolithic overlap Roofing: rebate Foundation: monolithic tape

Interested in this plan?

Contact us to get full blueprints, construction estimate, or adapt this plan to your plot and needs.

Request more information

Visualization gallery