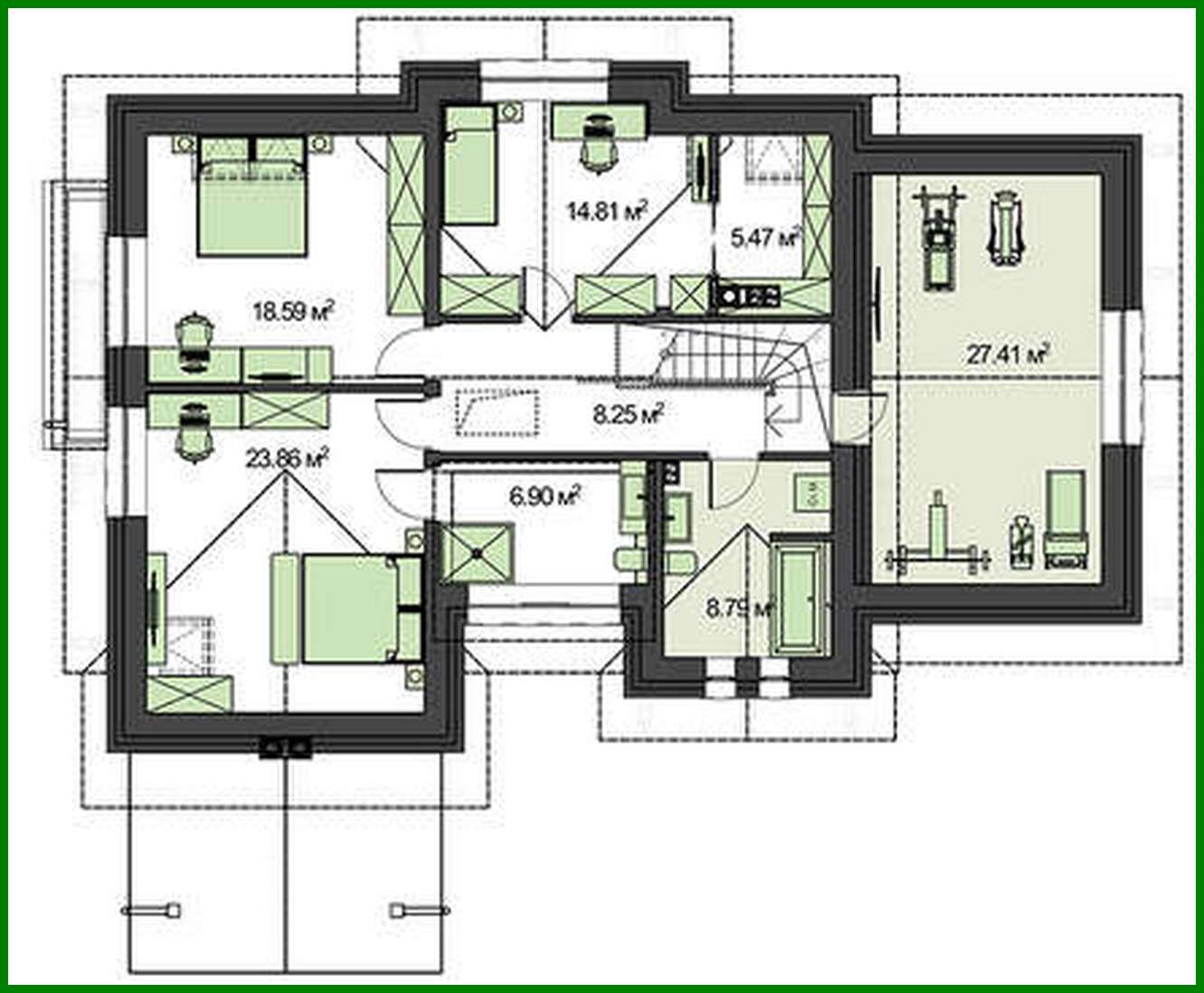
The original house with spacious personal rooms

243 m² total area / 2616 ft² 2 floors 4 bedrooms 2 bathrooms
The original house with spacious personal rooms
Click to view

Description

The original house with spacious personal rooms Number of floors: 2 Total area: 242.87 m2 Living Area: 105.40 m2 House height: 9.28 m Ceiling Height: 2.80 m Roof Angle: 48 ° Roof area: 309.00 m2 Cubature: 544.00 m3 Number of bedrooms: 4 Number of bathrooms: 2 Garage: Garage for one car Minimum plot size (length): 25.50 m Minimum plot size (width): 19.50 m Built-up area: 251.1 m2 Materials: Walls: aerated concrete blocks Overlap: monolithic overlap Roofing: metal tile, ceramic tile, bitumen Foundation: monolithic tape

Interested in this plan?

Contact us to get full blueprints, construction estimate, or adapt this plan to your plot and needs.

Request more information

Visualization gallery