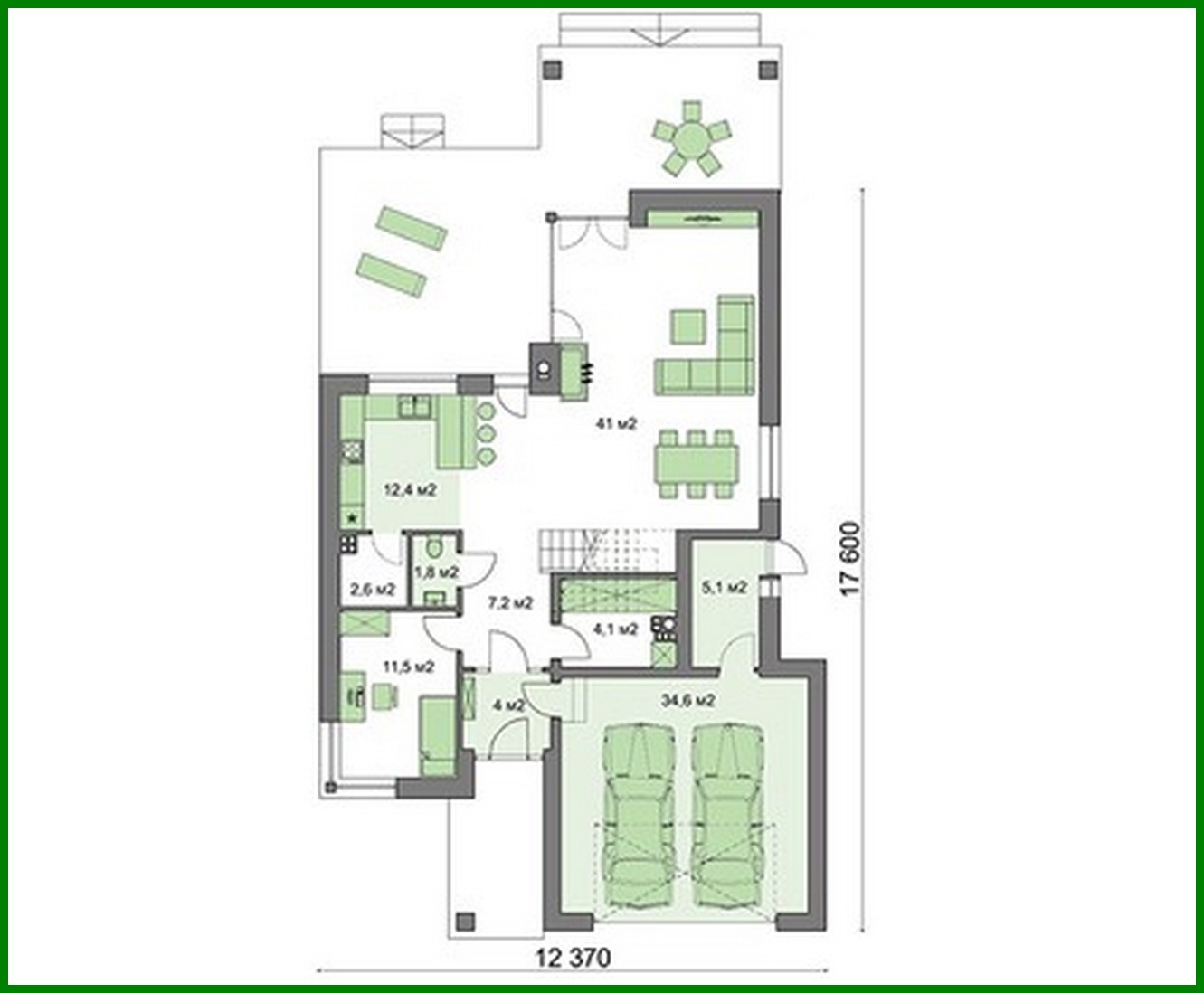
Beautiful house with a large terrace

214 m² total area / 2303 ft² 2 floors 5 bedrooms 3 bathrooms
Beautiful house with a large terrace
Click to view

Description

Beautiful house with a large terrace Number of floors: 2 Total area: 214.40 m2 Living Area: 130.20 m2 House height: 9.40 m Ceiling Height: 2.80 m Roof Angle: 25 ° Roof area: 239.80 m2 Cubic capacity: 682.00 m3 Number of bedrooms: 5 Number of bathrooms: 3 Garage: Two-car garage Minimum plot size (length): 20.50 m Minimum plot size (width): 23.50 m Built-up area: 193.4 m2 Materials: Walls: aerated concrete, ceramic blocks Overlap: monolithic overlap Roofing: ceramic tile, metal tile, cement-sand tile Foundation: monolithic tape

Interested in this plan?

Contact us to get full blueprints, construction estimate, or adapt this plan to your plot and needs.

Request more information

Visualization gallery