Luxury country house with bay window

166 m² total area / 1787 ft² 2 floors 5 bedrooms 2 bathrooms
Luxury country house with bay window
Click to view

Description

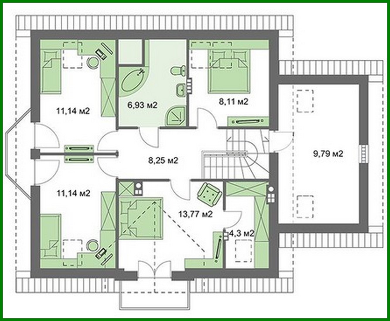
Luxury country house with bay window Number of floors: 2 Total area: 165.62 m2 Living Area: 105.74 m2 House height: 8.80 m Ceiling Height: 2.80 m Roof Angle: 42 ° Number of bedrooms: 5 Number of bathrooms: 2 Garage: Garage for one car Minimum plot size (length): 20.00 m Minimum plot size (width): 18.00 m Materials: Walls: aerated concrete, ceramic blocks Overlap: monolithic overlap Roofing: ceramic tile, metal tile, cement-sand tile Foundation: monolithic tape

Interested in this plan?

Contact us to get full blueprints, construction estimate, or adapt this plan to your plot and needs.

Request more information

Visualization gallery