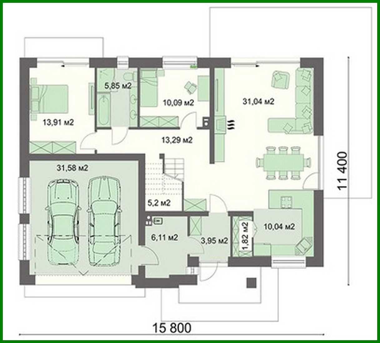
Five-bedroom apartment building with a spacious garage

172 m² total area / 1851 ft² 1 floor 5 bedrooms 2 bathrooms
Five-bedroom apartment building with a spacious garage
Click to view

Description

Five-bedroom apartment building with a spacious garage Number of floors: 2 Total area: 171.63 m2 Living Area: 148.58 m2 House height: 7.94 m Ceiling Height: 2.80 m Roof Angle: 35 ° Number of bedrooms: 5 Number of bathrooms: 2 Garage: Two-car garage Minimum plot size (length): 23.80 m Minimum plot size (width): 19.40 m Materials: Walls: aerated concrete, ceramic blocks Overlap: monolithic overlap Roofing: ceramic tile, metal tile, cement-sand tile Foundation: monolithic tape

Interested in this plan?

Contact us to get full blueprints, construction estimate, or adapt this plan to your plot and needs.

Request more information

Visualization gallery