Beautiful two-story house with a garage for two cars

211 m² total area / 2271 ft² 2 floors 3 bedrooms 2 bathrooms
Beautiful two-story house with a garage for two cars
Click to view

Description

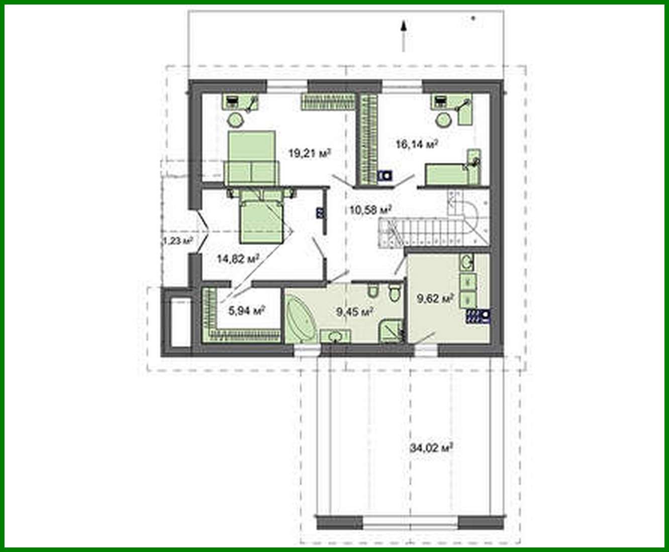
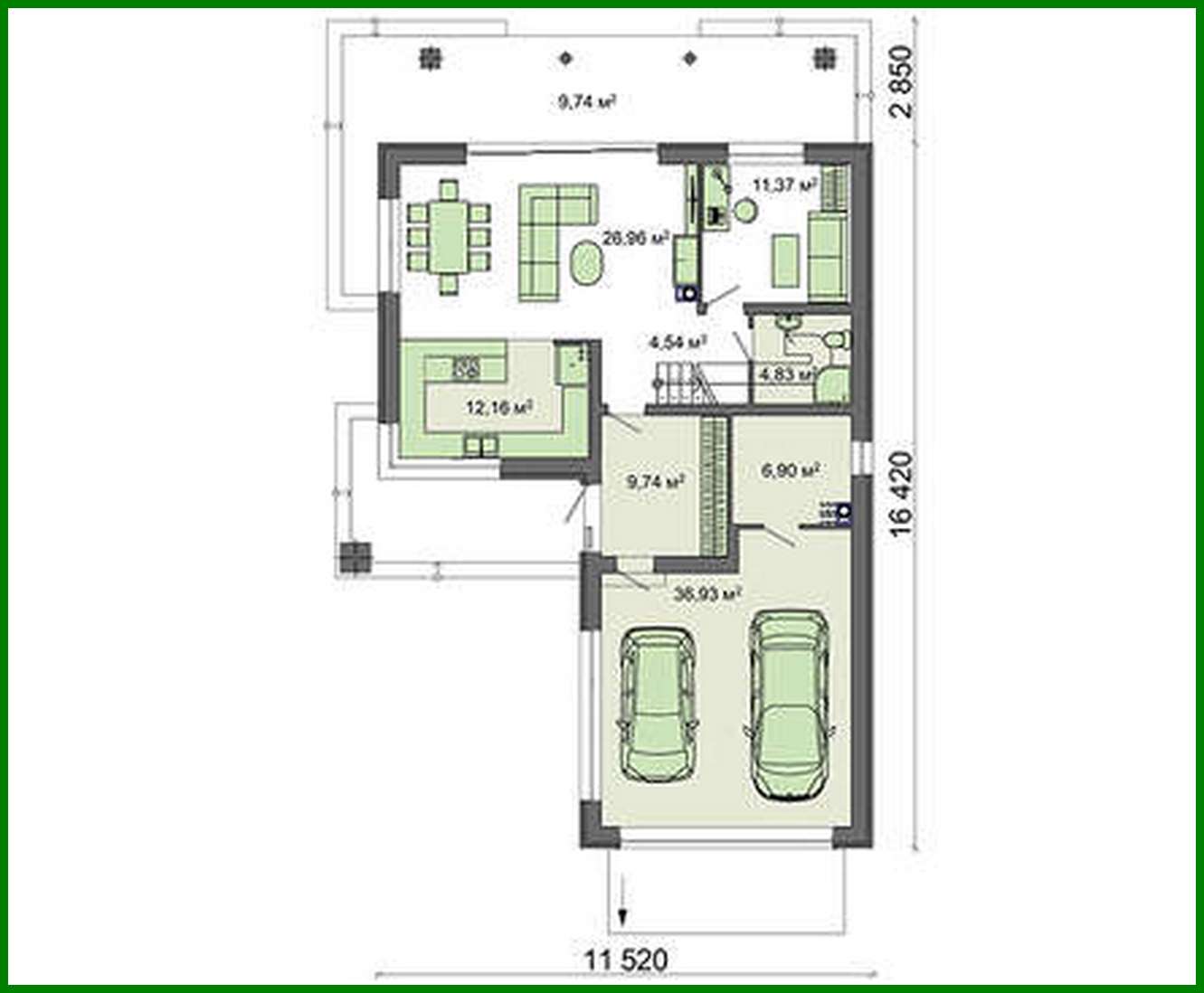
Beautiful two-story house with a garage for two cars Number of floors: 2 Total area: 210.96 m2 Living Area: 88.50 m2 House height: 9.80 m Ceiling Height: 2.80 m Roof Angle: 42 ° Roof area: 309.50 m2 Number of bedrooms: 3 Number of bathrooms: 2 Garage: Two-car garage Minimum plot size (length): 19.50 m Minimum plot size (width): 24.60 m Built-up area: 203.95 m2 Materials: Walls: aerated concrete blocks Overlap: monolithic overlap Roofing: metal tile, ceramic tile, bitumen Foundation: monolithic tape

Interested in this plan?

Contact us to get full blueprints, construction estimate, or adapt this plan to your plot and needs.

Request more information

Visualization gallery