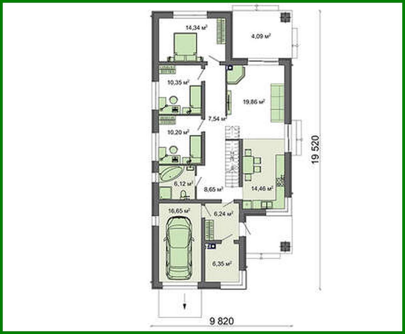
Stylish two-story country house with a garage

187 m² total area / 2013 ft² 2 floors 4 bedrooms 2 bathrooms
Stylish two-story country house with a garage
Click to view

Description

Stylish two-story country house with a garage Number of floors: 2 Total area: 186.75 m2 Living Area: 68.35 m2 House height: 7.27 m Ceiling Height: 2.80 m Roof Angle: 35 ° Roof area: 284.00 m2 Number of bedrooms: 4 Number of bathrooms: 2 Garage: Garage for one car Minimum plot size (length): 27.50 m Minimum plot size (width): 17.80 m Built-up area: 193.37 m2 Materials: Walls: aerated concrete blocks Overlap: monolithic overlap Roofing: metal tile, ceramic tile, bitumen Foundation: monolithic tape

Interested in this plan?

Contact us to get full blueprints, construction estimate, or adapt this plan to your plot and needs.

Request more information

Visualization gallery