The project of a modern two-story cottage

205 m² total area / 2207 ft² 2 floors 4 bedrooms 3 bathrooms
The project of a modern two-story cottage
Click to view

Description

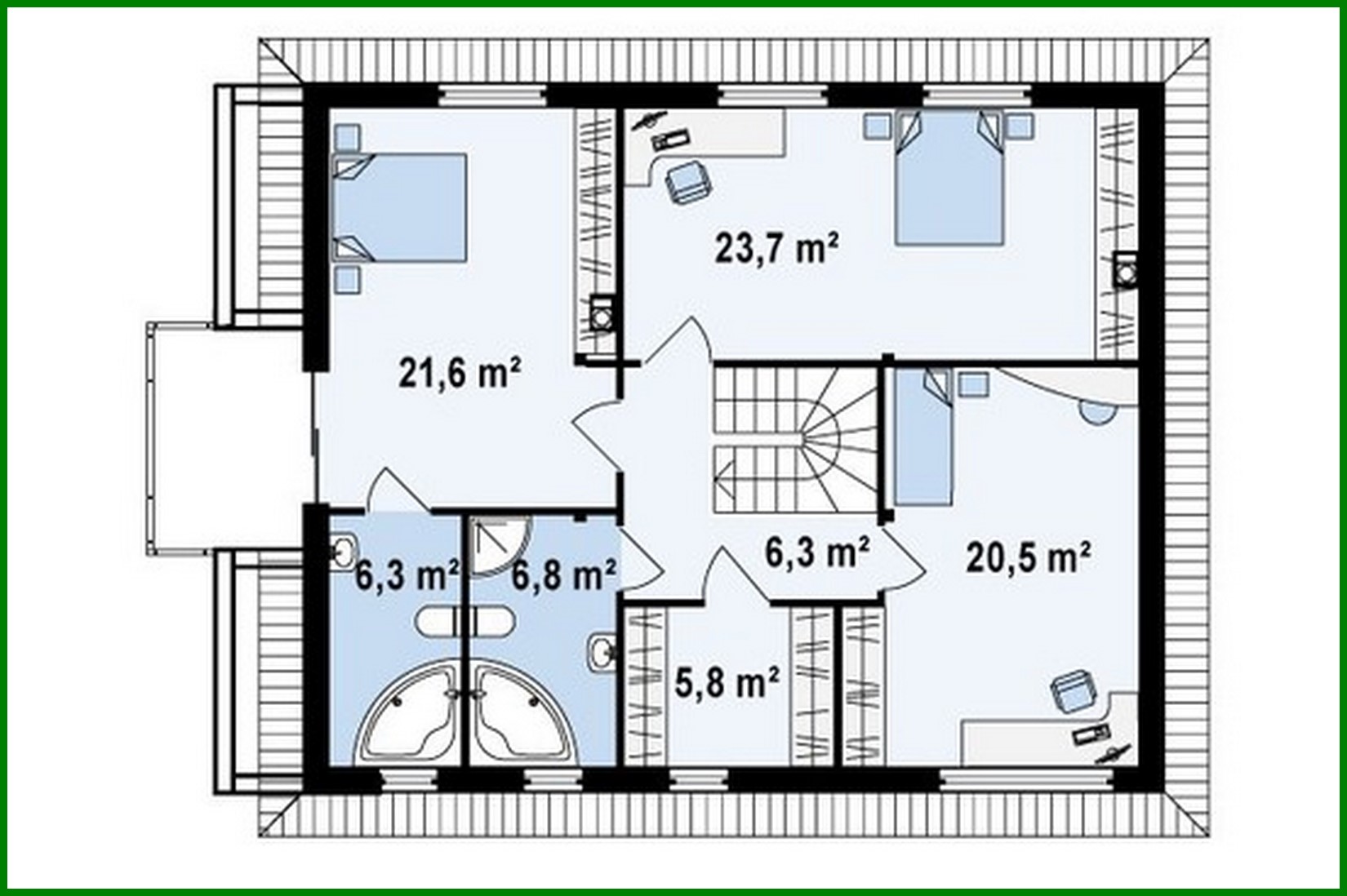
The project of a modern two-story cottage Number of floors: 2 Total area: 204.80 m2 Living Area: 109.90 m2 House height: 9.13 m Ceiling Height: 2.80 m Roof Angle: 22 ° Roof Area: 161.50 m2 Cubature: 514.00 m3 Number of bedrooms: 4 Number of bathrooms: 3 Garage: Garage for one car Minimum plot size (length): 20.00 m Minimum plot size (width): 17.00 m Materials: Walls: aerated concrete, ceramic blocks Overlap: monolithic overlap Roofing: ceramic tile, metal tile, cement-sand tile Foundation: monolithic tape band

Interested in this plan?

Contact us to get full blueprints, construction estimate, or adapt this plan to your plot and needs.

Request more information

Visualization gallery